927 NW 57th Street Seattle, WA 98107

On Property Old building Demo'd

3D Generated future build

3-D Generated

3-D Generated

3-D Generated

3-D Generated

Property lines

Street View

On Property Old building Demo'd

Street View

Drone

Drone

Bird's Eye View

Landscape Plan

Units

Building.

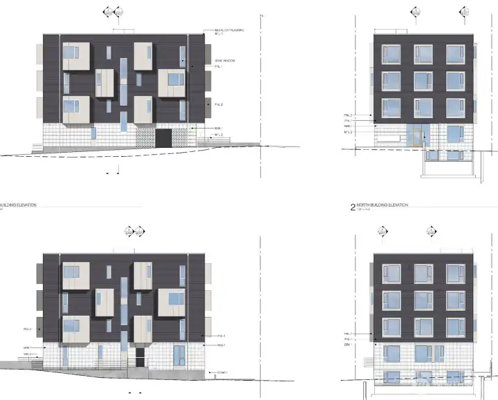
Floor plans
927 NW 57th Street
Seattle, WA 98107
$1,400,000
Land
0 Beds
0.00 Baths
0 SqFt
Active
Builder/Investor/Developer Alert! Exceptional opportunity for a fully entitled, permits PAID, multifamily development in one of Seattle’s most desirable rental submarkets. Ballard Urban Village approved 26-unit apartment zoned LR2 (M1). 0 parking requirements, cost savings/improved project feasibility. Approved plans for a 4-story plus basement, Type V-A construction building featuring an efficient micro-unit / SEDU program optimized for strong rent-per-square-foot performance. Unit sizes range approximately 225–330 square feet, each designed to meet or exceed Seattle code requirements for habitable space and storage. Includes indoor bike storage, shared outdoor amenity space, and thoughtfully integrated landscaping. Design Review and all SDCI permit corrections have been completed, with construction documents approved.issued. MHA requirements have been satisfied on-site, eliminating future affordability uncertainty. The architectural design features articulated façades, projecting bay windows, durable exterior materials, and residential-scaled massing that integrates seamlessly with the surrounding neighborhood. Situated near transit, major employment centers, restaurants, retail, and everyday amenities, this offering presents a rare opportunity for developers/investors seeking a shovel-ready, low-entitlement-risk apartment project in a high-demand Ballard location. All plans, approvals, and due diligence materials are included in list price.photos contain renderings.
Property Features
Community: Ballard
Res-Less thn 1 Ac
View: Territorial
Pool: Above Ground
2025 Taxes: $11753.00
Buyer Broker Comp.: 2.5%
Listing #: 2459242
Lot Details
Lot Size: 0.11 acres
Curbs
Paved
Sidewalk
Topography: Level
Road: Trail Permit
Utilities
Electricity: On Property
Water: Available
Gas: On Property
Sewer: Available
Schools
District: Seattle
Elem: West Woodland
Middle: Hamilton Mid
High: Ballard High
Call or Email:
Grace Wamwere
What's Near 927 NW 57th Street Seattle, WA 98107?

Information is based on data available to the associate, including county records. The information has not been verified by the associate and all information presented should be verified by the buyer. Listings are provided by Northwest Multiple Listing Service as distributed by MLS GRID. The associate represented on this web site is not a multiple listing service but is a member of a local MLS.
DMCA Notice