10340 39th Avenue NE Seattle, WA 98125
10340 39th Avenue NE
Seattle, WA 98125
$625,000
Residential
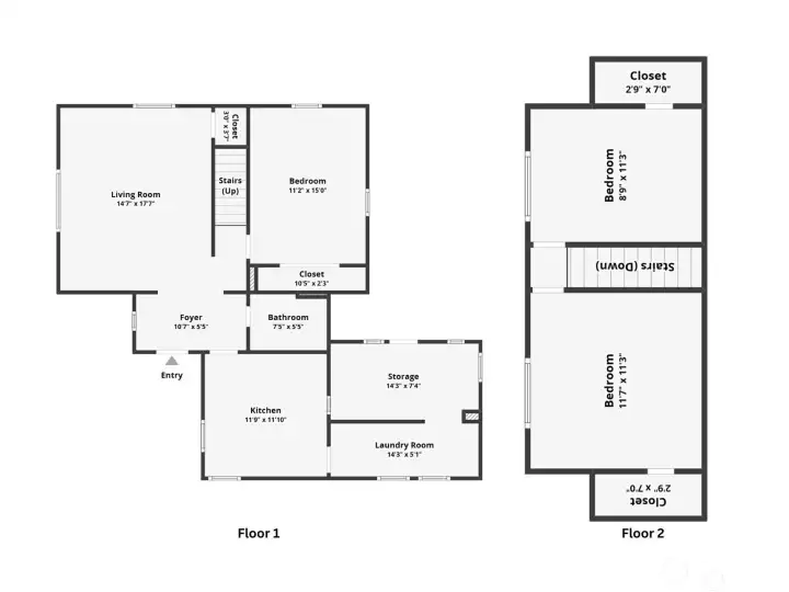
3 Beds
1.00 Baths
1350 SqFt
Active
Charming 1940 Meadowbrook classic with 3 beds, 1 bath, and timeless appeal! Ideally located near the pond park, scenic trails, and all three district schools—including the new John Rogers Elementary. Enjoy freshly refinished hardwoods, new carpet, fresh paint, updated landscaping, and a new sewer liner. Electrical panel and service recently upgraded. Fully fenced backyard offers privacy and play space. Off-street parking completes the package. A rare blend of character and convenience!
Watch Virtual Tour #1Property Features
Community: Meadowbrook
2 Story
Cable TV
Fenced-Partially
Gas Available
High Speed Internet
Outbuildings
RV Parking
Shop
Exterior: Wood
Roof: Composition
Parking: Off Street
Parking: RV Parking
Year Built: 1940
HOA Dues: $50
2025 Taxes: $6426.00
Buyer Broker Comp.: 2.5%
Listing #: 2458255
Lot Details
Lot Size: 0.08 acres
Dead End Street
Paved
Appliances That Stay
Dishwasher(s)
Dryer(s)
Refrigerator(s)
Stove(s)/Range(s)
Washer(s)
Interior
Double Pane/Storm Window
Cooling: None
Heating: Radiant
Electric
Natural Gas
Schools
District: Seattle
Elem: John Rogers
Middle: Jane Addams
High: Nathan Hale High
Call or Email:
Grace Wamwere
What's Near 10340 39th Avenue NE Seattle, WA 98125?

Information is based on data available to the associate, including county records. The information has not been verified by the associate and all information presented should be verified by the buyer. Listings are provided by Northwest Multiple Listing Service as distributed by MLS GRID. The associate represented on this web site is not a multiple listing service but is a member of a local MLS.
DMCA Notice