8908 NE Etna Road Woodland, WA 98674
8908 NE Etna Road
Woodland, WA 98674
$398,000
Residential
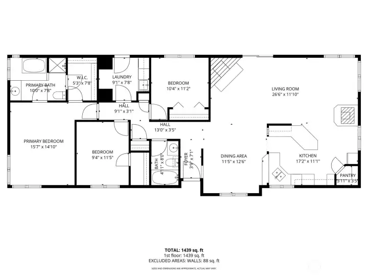
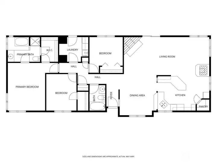
3 Beds
2.00 Baths
1488 SqFt
Pending
Acreage, Large Shop, and Home: Your Dream Home Awaits! Don't miss this opportunity to own 2.64 acres of land, situated near the river, making it a fisher's paradise. This property combines comfortable living with space for hobbies and storage. The 1,488 sq ft home needs a little TLC, boasting 3 bedrooms and 2 bathrooms, featuring an open main living area that flows seamlessly from the entry through the dining area, past the kitchen, and into the living room, which is highlighted by fireplaces. Recent updates 2025, a new roof and flooring, add to the home's appeal. Outdoor amenities are unparalleled, including a massive shop along with a few helpful outbuildings on the beautiful partly fenced acreage. Call for more information.
Property Features
Community: Woodland City
Manuf-Double Wide
View: Mountain(s)
Fenced-Partially
Outbuildings
RV Parking
Shop
Exterior: Wood Products
Roof: Composition
Parking: None
Parking: RV Parking
Year Built: 1981
2025 Taxes: $3443.44
Listing #: 2457018
Lot Details
Lot Size: 2.64 acres
Value In Land
Appliances That Stay
Dishwasher(s)
Interior
Bath Off Primary
Dining Room
Vaulted Ceiling(s)
Walk-In Pantry
Walk-In Closet(s)
Cooling: Heat Pump
Heating: Heat Pump
Electric
Schools
District: Woodland
Elem: Buyer To Verify
Middle: Buyer To Verify
High: Buyer To Verify
Call or Email:
Grace Wamwere
What's Near 8908 NE Etna Road Woodland, WA 98674?

Information is based on data available to the associate, including county records. The information has not been verified by the associate and all information presented should be verified by the buyer. Listings are provided by Northwest Multiple Listing Service as distributed by MLS GRID. The associate represented on this web site is not a multiple listing service but is a member of a local MLS.
DMCA Notice