6371 N Fork Road Yakima, WA 98903
6371 N Fork Road
Yakima, WA 98903
$329,900
Manufactured Home
2 Beds
1.00 Baths
847 SqFt
Active
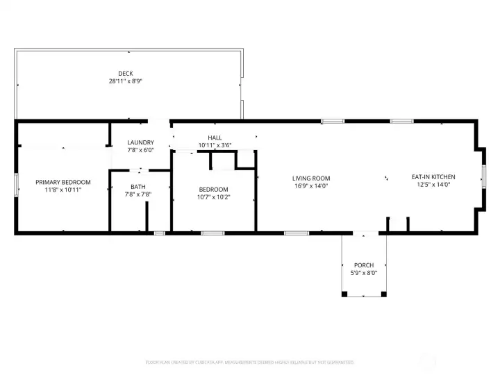
A peaceful country home offering comfort, functionality, and outdoor convenience. This 1995 single-wide manufactured home features 2 bedrooms, 1 bathroom, a well-maintained living space, complemented by a covered porch ideal for relaxing and taking in the rural surroundings. The property includes a private well, outbuilding for storage, and a dedicated well house. A spacious 25x25 shop with 100-amp power provides ample room for tools, vehicles, or recreational equipment. Located just minutes from the camp grounds, this home offers quick access to year-round outdoor recreation while remaining within easy reach of Yakima’s amenities.
Property Features
Community: Yakima
Manuf-Single Wide
Exterior: Wood
Roof: Composition
Roof: Metal
Parking: Individual Garage
Year Built: 1995
2025 Taxes: $1173.44
Listing #: 2455846
Lot Details
Lot Dimensions: 240x400x200x400
Appliances That Stay
Dryer(s)
Refrigerator(s)
Stove(s)/Range(s)
Washer(s)
Interior
Cooling: Window Unit A/C
Heating: Forced Air
Electric
Call or Email:
Grace Wamwere
What's Near 6371 N Fork Road Yakima, WA 98903?

Information is based on data available to the associate, including county records. The information has not been verified by the associate and all information presented should be verified by the buyer. Listings are provided by Northwest Multiple Listing Service as distributed by MLS GRID. The associate represented on this web site is not a multiple listing service but is a member of a local MLS.
DMCA Notice