3919 SW 313th Street Federal Way, WA 98023

Family Room Main Level

Formal Dining Room Main Level

Formal Living Room Main Level

Half Bathroom Powder Room on Main Floor

Primary Suite on 2nd Level

Primary Suite with stunning view!

Balcony off of Primary Suite!

Bathroom Primary Suite
3919 SW 313th Street
Federal Way, WA 98023
$950,000
Residential
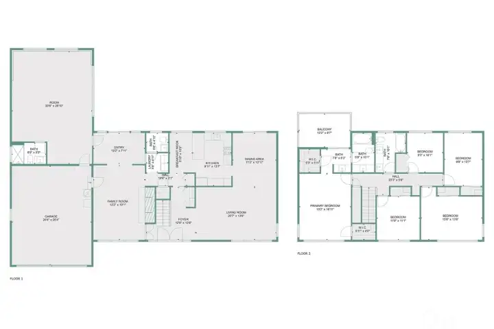
5 Beds
3.25 Baths
3270 SqFt
Active
Discover elevated Northwest living in this exceptional view home in the sought-after Twin Lakes Community. Perfectly positioned along the 14th hole of Twin Lakes Golf Course, this elegant 5-bedroom, 3.5-bath residence captures breathtaking views of Puget Sound & unforgettable sunsets. The updated interior features expansive windows that fill the home with nat. light & frame stunning water views. An open layout flows through beautifully designed living spaces, highlighted by stylish finishes & a spacious bonus room offering exceptional flexibility perfect for multi-generational living,private office,art studio,media room, or potential guest or rental suite. Located on the main floor, this versatile space can also function as a convenient primary suite option. The tranquil upstairs primary suite features a private balcony ideal for morning coffee while enjoying peaceful golf course & water views. Step outside to your own retreat w/mature landscaping, fruit trees, & inviting outdoor spaces for entertaining & relaxation. Enjoy evenings around the fire pit on the patio or unwind beneath the covered mezzanine while watching the sun set over the Sound. Additional features include a new turf front lawn, a newer roof, and a one-year home warranty. Located minutes from Dash Point State Park with easy access to shopping and dining, this remarkable property offers luxury, lifestyle, and location. A rare opportunity to own a premier view property in the coveted Twin Lakes community.
Watch Virtual Tour #1Property Features
Community: Twin Lakes
2 Story
View: Golf Course
Exterior: Brick
Exterior: Stucco
Exterior: Wood
Roof: Composition
Parking: Attached Garage
Year Built: 1977
HOA Dues: $37
2025 Taxes: $7420.00
Buyer Broker Comp.: 2.5%
Listing #: 2455553
Lot Details
Lot Size: 0.18 acres
Lot Dimensions: 100x81x3x100x78
Paved
Appliances That Stay
Dishwasher
Disposal
Dryer
Microwave
Refrigerator
Stove(s)/Range(s)
Trash Compactor
Washer
Watch Virtual Tour #2Interior
Bath Off Primary
Dining Room
Fireplace
Walk-In Closet(s)
Water Heater
Dbl Pane/Storm Window
Cooling: Forced Air, Heat Pump
Heating: Forced Air, Baseboard
Electric
Natural Gas
Fireplaces: 1
Community Features
CCRs
Club House
Schools
District: Federal Way
Elem: Twin Lakes Elem
Middle: Lakota Mid Sch
High: Decatur High
Call or Email:
Grace Wamwere
What's Near 3919 SW 313th Street Federal Way, WA 98023?

Information is based on data available to the associate, including county records. The information has not been verified by the associate and all information presented should be verified by the buyer. Listings are provided by Northwest Multiple Listing Service as distributed by MLS GRID. The associate represented on this web site is not a multiple listing service but is a member of a local MLS.
DMCA Notice