3030 SE 12TH Street #1077 Renton, WA 98058
3030 SE 12TH Street #1077
Renton, WA 98058
$444,990
Condominium
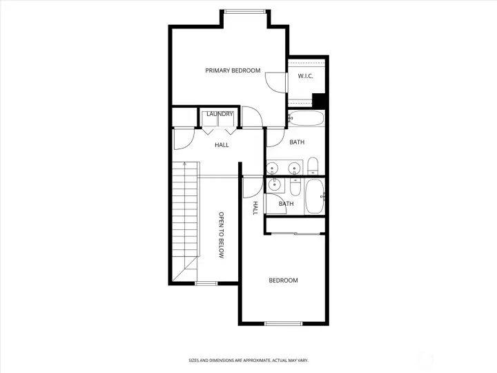
2 Beds
2.50 Baths
1411 SqFt
Pending
Welcome to this charming 2-bedroom, 2.5-bath home in a desirable gated community. Designed for comfort, the home offers two full primary suites, an open living and dining area, and a kitchen with bar seating. The fully fenced backyard is ideal for pets, gardening, or outdoor gatherings. Parking is easy with a one-car garage, driveway space, and guest/off-street options. Residents also enjoy access to a clubhouse with event rental space, gym, athletic court, and optional RV parking. Fresh interior paint throughout. Conveniently located near freeway access and major shopping areas.
Property Features
Community: Renton
Townhouse
Floor: 1
View: Territorial
Exterior: Metal/Vinyl
Exterior: Wood Products
Roof: Composition
Parking: Individual Garage
Parking: RV Parking
Year Built: 2003
HOA Dues: $540
2025 Taxes: $4605.00
Buyer Broker Comp.: 2.5%
Listing #: 2455452
Appliances That Stay
Dishwasher(s)
Dryer(s)
Microwave(s)
Refrigerator(s)
Stove(s)/Range(s)
Washer(s)
Interior
Walk-In Closet(s)
Primary Bathroom
Balcony/Deck/Patio
Primary Bath
Walk-in Closet
Cooling: None
Heating: Forced Air
Electric
Natural Gas
Common Features
Athletic Court
Exercise Room
Gated Entry
RV Parking
Clubhouse
Schools
District: Renton
Elem: Buyer To Verify
Middle: Buyer To Verify
High: Buyer To Verify
Call or Email:
Grace Wamwere
What's Near 3030 SE 12TH Street #1077 Renton, WA 98058?

Information is based on data available to the associate, including county records. The information has not been verified by the associate and all information presented should be verified by the buyer. Listings are provided by Northwest Multiple Listing Service as distributed by MLS GRID. The associate represented on this web site is not a multiple listing service but is a member of a local MLS.
DMCA Notice