
Awesome site view looking from what will be Lot 41 in finished plat looking out over town of Peshastin

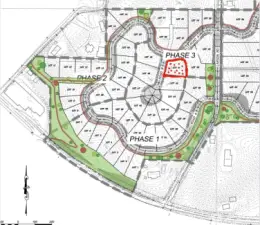
Highlighted location of lot 41 from the approved site plan

Peshastin UGA map. highlighted in green is the county approved planned development. Lot 41 and other lots will become available upon final plat approval

prior orchard photo looking west towards are area of lot 41 on map. Leavenworth is just over ridge to the west

former orchard has now been cleared, as county has awarded pre lim project approval and now offered for sale

looking West over project area with Peshastin to left and Leavenworth over ridge to the west. Orchard has now been cleared and project is for sale

looking over lot 40 lot 41 vicinity SE showing great topography and view from this prior photo right before orchard was removed

recent photo now that orchard has been removed and pre lim approval has been awarded. Note wonderful topography and home siting opportunities

General map to show proximity to Leavenworth in the upper Wenatchee Valley

lookbook examples from our Architect designs submitted for application

from our application lookbook, our architect desgn and an example of what we propose to build in the modern home community

Example of our architect designed homes as examples of what to build

home example designed by our architect and example of home designs suggested