
Presenting for the first time ever in former pear farming land we have a pre approved project for sale

view from over project location looking down the Wenatchee valley

view looking S/SE over project an Peshastin towards Blewett pass jct to the south

Peshastin UGA map. land and project for sale is highlighted in green general area for sale

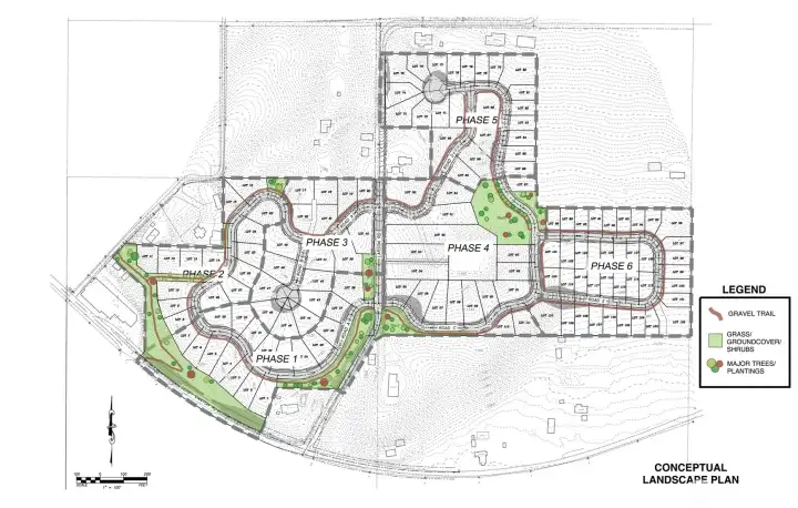
this is the approved site plan included with this sale. Many required steps to get here

current photo looking across vast lands ready for development. this view looking SE across project with valley views

current photo now that Note the awesome topography presenting great home siting but also multiple view angels . orchard is cleared and ready for project.

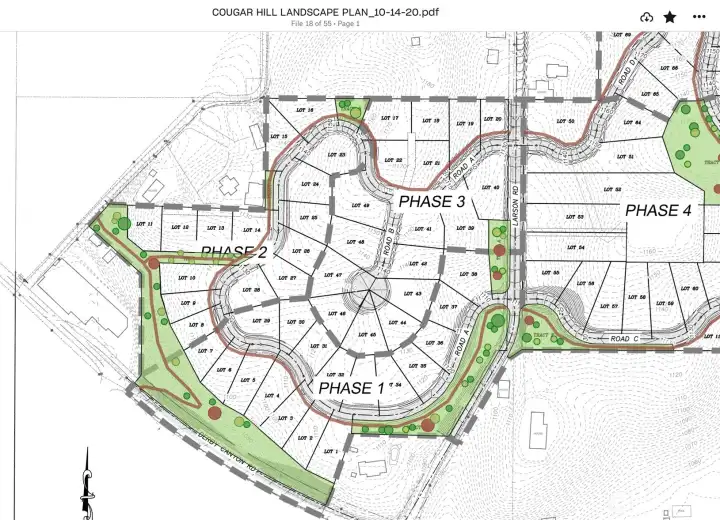
close up view of the first three phases where buyer would start

current view in November near what is shown as lot 41 looking south over the community of Peshastin

Photos showing general location in close proximity to Leavenworth overall project size is highlighted in red