14200 69th Drive SE #F4 Snohomish, WA 98296
14200 69th Drive SE #F4
Snohomish, WA 98296
$350,000
Condominium
1 Beds
1.00 Baths
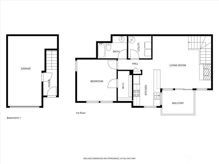
758 SqFt
Active
Well-maintained condo w/attached garage in desirable Magnolia at Highlands East! Updates include fresh paint, new LVP flooring & carpet, lighting, garage door opener/components & newer roof. Home features light & bright living room w/cozy fireplace that opens to private deck, kitchen w/ample storage, bedroom w/walk-in closet, spacious bathroom & laundry room, plus a beautiful Cherry Blossom tree at the entry. Community features parks, play areas, & walking path. Ideal location right next to Willis Tucker trail/park featuring an off-leash dog area, picnic shelters, baseball & soccer fields, amphitheater, splash pad, playground & events including farmer’s market, movie nights + more! Easy access to Highway 9, I-5, I-405, & downtown Snohomish!
Property Features
Community: Highlands
Condo (1 Level)
Floor: 1
Bus Line Nearby: Yes
Exterior: Metal/Vinyl
Roof: Composition
Parking: Individual Garage
Year Built: 2004
HOA Dues: $630
2025 Taxes: $3192.51
Buyer Broker Comp.: 3%
Listing #: 2454574
Lot Details
Dead End Street
Paved
Appliances That Stay
Dishwasher(s)
Disposal
Dryer(s)
Microwave(s)
Refrigerator(s)
Stove(s)/Range(s)
Washer(s)
Interior
Cooking-Electric
Dryer-Electric
Fireplace
Sprinkler System
Walk-In Closet(s)
Washer
Water Heater
Insulated Windows
Top Floor
Balcony/Deck/Patio
Insulated Windows
Sprinkler System
Top Floor
Walk-in Closet
Cooling: None
Heating: Wall Unit(s), Baseboard
Electric
Fireplaces: 1
Common Features
Athletic Court
Cable TV
High Speed Int Avail
Outside Entry
Trails
Open Houses
Nov 15: 11:00 AM - 1:00 PM
Nov 16: 12:00 PM - 2:00 PM
Schools
District: Snohomish
Elem: Totem Falls
Middle: Valley View Mid
High: Glacier Peak
Call or Email:
Grace Wamwere
What's Near 14200 69th Drive SE #F4 Snohomish, WA 98296?

Information is based on data available to the associate, including county records. The information has not been verified by the associate and all information presented should be verified by the buyer. Listings are provided by Northwest Multiple Listing Service as distributed by MLS GRID. The associate represented on this web site is not a multiple listing service but is a member of a local MLS.
DMCA Notice