451 Elk Creek Chehalis, WA 98532

Welcome

Front. Proximity of East property line

Currently under some renovations.

Will be ready for you to make me your home.

Living from entry way

Living room with large FP

Downstairs 3D Floorplan with staged options

Upstairs 3D Floorplan with flooring and staged options

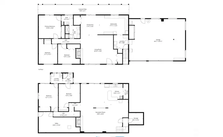
Floorplan with measurements

Looking East

Looking Southwest

Ariel looking West

Looking East

Looking Southwest

Ariel looking West

Neighboring property to left, creek at top

Ariel Overview. Road is at the top of photo. Back view and creek

Creek

Back of home shows creek proximity. Plastic was erected to protect deck when applying materials. Like protection so not eager to remove

Beautiful Creek looking East. It does recede in summer

Nice views of creek from upper deck. Room for garden boxes, sitting area at end of home

It's a gem

West end of home with creek and outbuildings

Property boundaries of the 1.07 acres
451 Elk Creek
Chehalis, WA 98532
$550,000
Residential
3 Beds
2.00 Baths
3517 SqFt
Active
Spacious 3,500± sq. ft. daylight rambler on 1 acre with year-round creek frontage in the Doty area. Thoughtful updates, blending comfort, functionality, and timeless charm. Flexible living spaces include 3 bedrooms and 1.5 baths on the main level, plus a fully finished daylight basement with its own entrance, additional living area, second kitchen, and expanded family room. Ideal for a variety of living arrangements, hobbies, workspace needs, or added flexibility. Features include two fireplaces, energy-efficient heat pump, newer 80-gallon hybrid hot water tank, covered patio, and a waterproof deck overlooking the creek and a garden space. A durable metal roof extends over the original structure. Conveniently located between the amenities of Chehalis and Centralia, with access west toward Raymond and the coast. Enjoy nearby outdoor recreation at Rainbow Falls State Park, the Chehalis River, and the Willapa Hills Trail with opportunities for hiking, biking, fishing, and exploring the natural beauty of the area. Come experience the potential and setting this property has to offer. Conveniently located between the amenities of Chehalis and Centralia, with access west toward Raymond and the coast. Enjoy nearby outdoor recreation at Rainbow Falls State Park, the Chehalis River, and the Willapa Hills Trail with opportunities for hiking, biking, fishing, and exploring the natural beauty of the area. Come experience the potential and setting this property has to offer.
Property Features
Community: Doty
1 Story w/Bsmnt.
Exterior: Wood
Roof: Metal
Parking: Attached Garage
Year Built: 1969
2025 Taxes: $684.00
Buyer Broker Comp.: 2.5%
Listing #: 2453312
Lot Details
Lot Size: 1.07 acres
Interior
Second Kitchen
Ceiling Fan(s)
Dining Room
Fireplace
Cooling: Heat Pump
Heating: Insert, Heat Pump
Wood
Fireplaces: 2
Call or Email:
Grace Wamwere
What's Near 451 Elk Creek Chehalis, WA 98532?

Information is based on data available to the associate, including county records. The information has not been verified by the associate and all information presented should be verified by the buyer. Listings are provided by Northwest Multiple Listing Service as distributed by MLS GRID. The associate represented on this web site is not a multiple listing service but is a member of a local MLS.
DMCA Notice