4706 S Morgan Street Seattle, WA 98118
4706 S Morgan Street
Seattle, WA 98118
$599,000
Residential
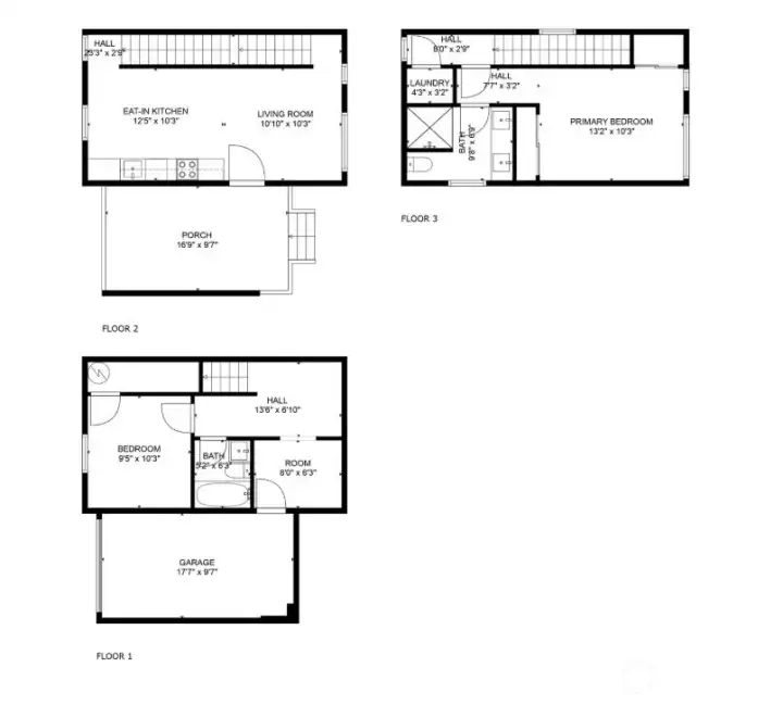
2 Beds
1.75 Baths
1215 SqFt
Active
Only one home remains in this newly built 3-home community. Don’t miss the final opportunity to own modern new construction with the rare combination of a covered garage, private driveway, and fenced yard this close to the city. Located in South Seattle’s vibrant Brighton neighborhood just minutes from Seward Park, this home puts everything you love within easy reach—morning coffee in Hillman City, dinner in Columbia City, and a quick 20-minute commute to downtown. Step inside to bright, open-concept living where the kitchen, dining, and lounge areas flow seamlessly—perfect for entertaining or comfortable everyday living. Two spacious bedrooms offer peaceful retreats, while expansive windows capture territorial views to the south, north, and east. Outside, enjoy the privacy of your fully fenced yard and sun-filled deck—ideal for gardening, pets, weekend mornings, or summer evenings outdoors. Secure parking, dedicated outdoor space, and thoughtful modern design make this home a standout in one of South Seattle’s most connected neighborhoods.
Property Features
Community: Brighton
Townhouse
View: Territorial
New Construction: Yes
Bus Line Nearby: Yes
Exterior: Cement Planked
Roof: Flat
Parking: Attached Garage
Year Built: 2025
HOA Dues: $30
2025 Taxes: $1.00
Buyer Broker Comp.: 2.5%
Listing #: 2453073
Lot Details
Lot Size: 0.02 acres
Paved
Sidewalk
Appliances That Stay
Dishwasher
Disposal
Refrigerator
Stove(s)/Range(s)
Interior
Cooling: Ductless HP-Mini Split
Heating: Ductless HP-Mini Split
Electric
Call or Email:
Grace Wamwere
What's Near 4706 S Morgan Street Seattle, WA 98118?

Information is based on data available to the associate, including county records. The information has not been verified by the associate and all information presented should be verified by the buyer. Listings are provided by Northwest Multiple Listing Service as distributed by MLS GRID. The associate represented on this web site is not a multiple listing service but is a member of a local MLS.
DMCA Notice