1502 Yonkers Drive SE #A&B Lacey, WA 98503
1502 Yonkers Drive SE #A&B
Lacey, WA 98503
$575,000
Multi-Family
0 Beds
0.00 Baths
0 SqFt
Active
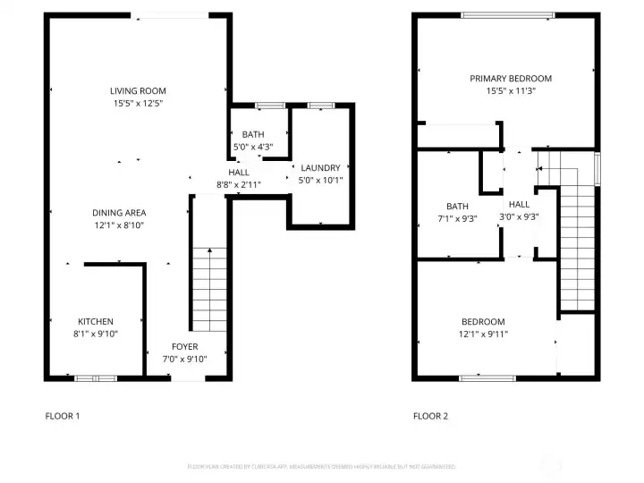
Beautifully maintained side-by-side duplex in the heart of Lacey, directly across from a community park on a quiet tree-lined street. Each two-story unit features 2 bedrooms, 1.5 bathrooms, a one-car garage, additional parking, and in-unit washer and dryer facilities. Updates include new flooring, interior paint, and modern finishes. Both units feature large private, fully fenced backyards and functional floor plans with great flow. One unit is tenant-occupied; the other is vacant—live in one and rent the other, or hold as an income-producing property for your portfolio. Convenient location near schools, shopping, and I-5 in an established neighborhood. True gem with an exceptional location and setting. Come and see it for yourself!
Property Features
Community: Central Lacey
Duplex
Deck
Fenced-Fully
Exterior: Wood Products
Roof: Composition
Year Built: 1978
HOA Dues: $285
2025 Taxes: $0.00
Buyer Broker Comp.: 2%
Listing #: 2451882
Lot Details
Lot Size: 0.27 acres
Paved
Sidewalk
No. of Units: 2
Interior
Cooling: Forced Air
Heating: Baseboard
Electric
Open Houses
Nov 8: 12:00 PM - 1:30 PM
Nov 15: 12:00 PM - 1:30 PM
Schools
District: North Thurston
Elem: Lacey Elem
Middle: Chinook Mid
High: North Thurston High
Call or Email:
Grace Wamwere
What's Near 1502 Yonkers Drive SE #A&B Lacey, WA 98503?

Information is based on data available to the associate, including county records. The information has not been verified by the associate and all information presented should be verified by the buyer. Listings are provided by Northwest Multiple Listing Service as distributed by MLS GRID. The associate represented on this web site is not a multiple listing service but is a member of a local MLS.
DMCA Notice