27714 74th Avenue NW Stanwood, WA 98292
27714 74th Avenue NW
Stanwood, WA 98292
$625,000
Residential
4 Beds
2.25 Baths
1750 SqFt
Active
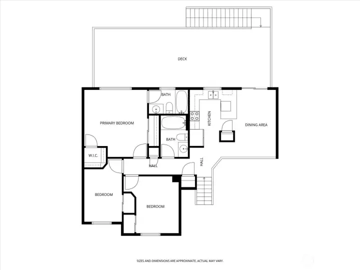
Tucked in a quiet, well-kept neighborhood, this beautifully updated four-bedroom California tri-level perfectly blends comfort and style. Fresh flooring, new paint, and thoughtful upgrades make it feel bright, modern, and completely move-in ready. The downstairs level is ideal for a potential MIL suite or passive income setup, featuring a spacious bonus room, bedroom, bathroom, and a private door separating it from the main floor. Sitting on just shy of a ¼ acre, the property offers a massive deck overlooking a fully fenced, private backyard; perfect for BBQs, gatherings, or peaceful evenings. With no HOA and plenty of space for your boat or RV, this home delivers the freedom and flexibility you’ve been searching for.
Watch Virtual Tour #1Property Features
Community: Stanwood
Tri-Level
Deck
Fenced-Fully
Gas Available
High Speed Internet
RV Parking
Exterior: Wood Products
Roof: Composition
Parking: Driveway
Parking: Attached Garage
Parking: Off Street
Parking: RV Parking
Year Built: 1998
2025 Taxes: $4254.00
Buyer Broker Comp.: 2.5%
Listing #: 2451782
Lot Details
Lot Size: 0.23 acres
Lot Dimensions: 10,019
Paved
Sidewalk
Appliances That Stay
Dishwasher(s)
Disposal
Refrigerator(s)
Stove(s)/Range(s)
Interior
Bath Off Primary
Double Pane/Storm Window
Fireplace
Skylight(s)
Walk-In Closet(s)
Water Heater
Cooling: None
Heating: Forced Air
Electric
Natural Gas
Fireplaces: 1
Open Houses
Nov 8: 12:00 PM - 2:00 PM
Nov 9: 12:00 PM - 2:00 PM
Schools
District: Stanwood-Camano
Elem: Buyer To Verify
Middle: Buyer To Verify
High: Buyer To Verify
Call or Email:
Grace Wamwere
What's Near 27714 74th Avenue NW Stanwood, WA 98292?

Information is based on data available to the associate, including county records. The information has not been verified by the associate and all information presented should be verified by the buyer. Listings are provided by Northwest Multiple Listing Service as distributed by MLS GRID. The associate represented on this web site is not a multiple listing service but is a member of a local MLS.
DMCA Notice