10019 Interlake Avenue N Seattle, WA 98133
10019 Interlake Avenue N
Seattle, WA 98133
$745,000
Land
0 Beds
0.00 Baths
0 SqFt
Active
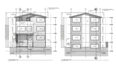
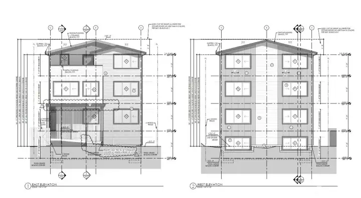
*Price Reduced-This is a permit-ready development lot in Seattle's desirable Northgate neighborhood. The lot is 4,980SF and pre-approved for a 14-unit apartment building (6,474BSF) under LR1(M) zoning. Permitted plans are included with the list price. Multiple unit configurations, bike parking, and sustainable designs conform to different tenant needs. Located near I-5, the Light Rail, Green Lake, and UW, it aligns well with the One Seattle Plan. Demolition and Construction permits are ready for issuance; Master Use Permit issued upon completion. Existing home (720SF, 1bd/1ba, 600sf basement, det. garage) is operated as a short-term rental with strong occupancy and income. Complete this modern and vibrant addition to Northgate or expand the lot your way! New Roof installed in October 2025.
Property Features
Community: Licton Springs
Multi-Family
Pool: Above Ground
2025 Taxes: $5648.00
Buyer Broker Comp.: 2.5%
Listing #: 2451540
Lot Details
Lot Size: 0.11 acres
Lot Dimensions: 40x124.5
Paved
Topography: Level
Road Sides: East
Road: See Remarks
Utilities
Electricity: Available
Water: Available
Water: See Remarks
Gas: Available
Sewer: Available
Schools
District: Seattle
Elem: Viewlands
Middle: Robert Eagle Staff Middle School
High: Ingraham High
Call or Email:
Grace Wamwere
What's Near 10019 Interlake Avenue N Seattle, WA 98133?

Information is based on data available to the associate, including county records. The information has not been verified by the associate and all information presented should be verified by the buyer. Listings are provided by Northwest Multiple Listing Service as distributed by MLS GRID. The associate represented on this web site is not a multiple listing service but is a member of a local MLS.
DMCA Notice