8220 49th Street NE Marysville, WA 98270
8220 49th Street NE
Marysville, WA 98270
$719,990
Residential
3 Beds
2.50 Baths
2082 SqFt
Active
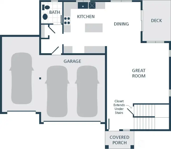
Introducing Taylor Lane, a thoughtfully planned new construction community designed for comfort, efficiency and modern living. THE CAYDEN Design A Plan on Lot 7 offers a spacious 2,082 square foot layout featuring 3 bedrooms, a versatile loft, 2.25 bathrooms, and a generous 3-car garage that provides ample room for vehicles, storage, or projects. The main living areas are designed with a open and functional flow, highlighted by elegant quartz countertops with a matching backsplash, stainless steel kitchen appliances, and durable laminate hardwood flooring throughout the kitchen, dining area, and great room. White painted millwork adds a clean, timeless finish that complements the contemporary design. Efficient heat pump provides reliable heating and cooling for year-round comfort. Large windows allow natural light to fill the home, creating a bright and welcoming atmosphere throughout. The loft offers flexible space suitable for a home office, media room, or additional living area. Taylor Lane is conveniently located with an easy commute and quick access to abundant shopping, dining, and everyday services just minutes away. Enjoy the many advantages of NEW construction, including a new home warranty, energy-efficient features, lower maintenance living, updated safety elements, and modern lifestyle design details that support long-term comfort and peace of mind. This home offers a fantastic opportunity to enjoy quality construction, thoughtful design in a convenient location.
Property Features
Community: Whiskey Ridge
2 Story
New Construction: Yes
Exterior: Cement/Concrete
Roof: Composition
Parking: Attached Garage
Year Built: 2025
HOA Dues: $100
2025 Taxes: $0.00
Buyer Broker Comp.: 2%
Listing #: 2451415
Lot Details
Lot Size: 0.11 acres
Appliances That Stay
Dishwasher(s)
Microwave(s)
Stove(s)/Range(s)
Interior
Cooling: Heat Pump
Heating: Heat Pump
Electric
Open Houses
Feb 20: 11:00 AM - 5:00 PM
Feb 21: 10:00 AM - 4:00 PM
Schools
District: Lake Stevens
Elem: Sunnycrest Elem
Middle: Lake Stevens Middle
High: Lake Stevens Snr Hig
Call or Email:
Grace Wamwere
What's Near 8220 49th Street NE Marysville, WA 98270?

Information is based on data available to the associate, including county records. The information has not been verified by the associate and all information presented should be verified by the buyer. Listings are provided by Northwest Multiple Listing Service as distributed by MLS GRID. The associate represented on this web site is not a multiple listing service but is a member of a local MLS.
DMCA Notice