4040 Aberdeen Way NE #36 Renton, WA 98056
4040 Aberdeen Way NE #36
Renton, WA 98056
$1,399,990
Residential
3 Beds
2.50 Baths
2551 SqFt
Active
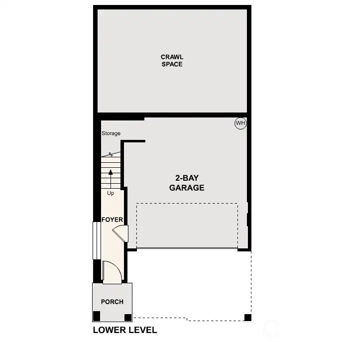
The Malcom at Lakeview Terrace elegantly unfolds over 2,551 square feet of living space. On the lower level, the two-bay garage leads up to the main floor. The open-concept design makes it easy to mingle as you relax in the living, dine in the dining space, and cook in the kitchen, complete with an island and pantry. The room extends onto a front deck. A convenient half bathroom can also be found on the main level. Upstairs, the primary suite serves as a luxurious escape with its own five-piece en-suite bathroom, private deck, and walk-in closet. Two additional bedrooms share a full bathroom, alongside a laundry room, creating a modern lifestyle with comfort and style. Buyer's Broker must accompany &/or register Buyer at 1st visit.
Property Features
Community: Renton
Multi Level
Electric Car Charging
Gas Available
High Speed Internet
Sprinkler System
New Construction: Yes
Exterior: Cement Planked
Exterior: Cement/Concrete
Exterior: Wood
Exterior: Wood Products
Roof: Composition
Parking: Attached Garage
Year Built: 2025
HOA Dues: $166
2026 Taxes: $1.00
Buyer Broker Comp.: 2%
Listing #: 2449484
Lot Details
Lot Size: 0.05 acres
Curbs
Paved
Sidewalk
Appliances That Stay
Dishwasher(s)
Disposal
Microwave(s)
Stove(s)/Range(s)
Interior
Bath Off Primary
Double Pane/Storm Window
Dining Room
High Tech Cabling
SMART Wired
Skylight(s)
Sprinkler System
Vaulted Ceiling(s)
Walk-In Closet(s)
Water Heater
Cooling: Ductless HP-Mini Split, 90%+ High Efficiency, Heat Pump
Heating: HRV/ERV System, Ductless HP-Mini Split, 90%+ High Efficiency, Heat Pump, Baseboard
Electric
Natural Gas
Community Features
CCRs
Playground
Schools
District: Renton
Elem: Hazelwood Elem
Middle: Risdon Middle School
High: Hazen Snr High
Call or Email:
Grace Wamwere
What's Near 4040 Aberdeen Way NE #36 Renton, WA 98056?

Information is based on data available to the associate, including county records. The information has not been verified by the associate and all information presented should be verified by the buyer. Listings are provided by Northwest Multiple Listing Service as distributed by MLS GRID. The associate represented on this web site is not a multiple listing service but is a member of a local MLS.
DMCA Notice