180 E Barnsby Place Shelton, WA 98584
180 E Barnsby Place
Shelton, WA 98584
$325,000
Residential
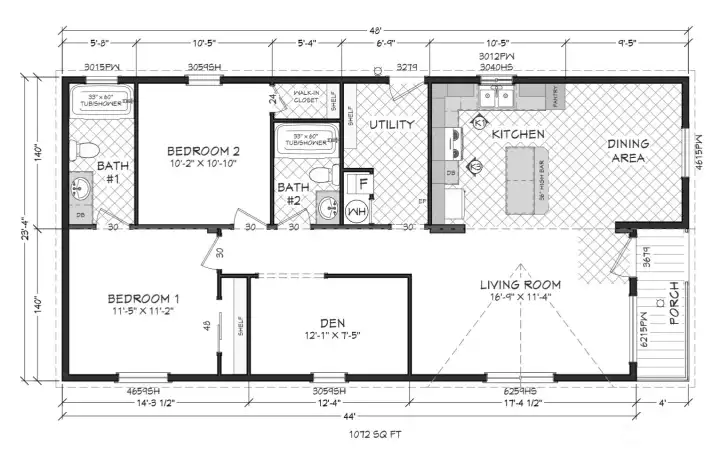
2 Beds
2.00 Baths
1152 SqFt
Pending Inspection
** Seller to pay buyers closing costs with full price offer.** Move in ready brand new 2025 doublewide home in the desirable Lake Limerick community, 2 beds/2 baths with a den. This home has an open, inviting layout including a spacious living room and kitchen with quartz countertops and a workstation sink, stainless steel appliances. Enjoy resort lifestyle living including access to pristine lake golf course, clubhouse and recreational amenities with the community and area. The perfect balance of modern comfort and fun outdoor living!
Property Features
Community: Lake Limerick
Manuf-Double Wide
View: Territorial
New Construction: Yes
Bus Line Nearby: Yes
Exterior: Wood
Roof: Composition
Parking: Off Street
Year Built: 2025
HOA Dues: $125
2024 Taxes: $437.00
Listing #: 2449024
Lot Details
Lot Size: 0.30 acres
Dead End Street
Appliances That Stay
Disposal
Microwave(s)
Refrigerator(s)
Stove(s)/Range(s)
Interior
Cooling: Forced Air
Heating: Forced Air
Electric
Community Features
Boat Launch
CCRs
Club House
Park
Trail(s)
Schools
District: Pioneer #402
Elem: Pioneer Primary Sch
Middle: Pioneer Intermed/Mid
High: Shelton High
Call or Email:
Grace Wamwere
What's Near 180 E Barnsby Place Shelton, WA 98584?

Information is based on data available to the associate, including county records. The information has not been verified by the associate and all information presented should be verified by the buyer. Listings are provided by Northwest Multiple Listing Service as distributed by MLS GRID. The associate represented on this web site is not a multiple listing service but is a member of a local MLS.
DMCA Notice