754 NE Reeds Meadow Lane Bremerton, WA 98311
754 NE Reeds Meadow Lane
Bremerton, WA 98311
$359,000
Condominium
3 Beds
1.75 Baths
1294 SqFt
Pending
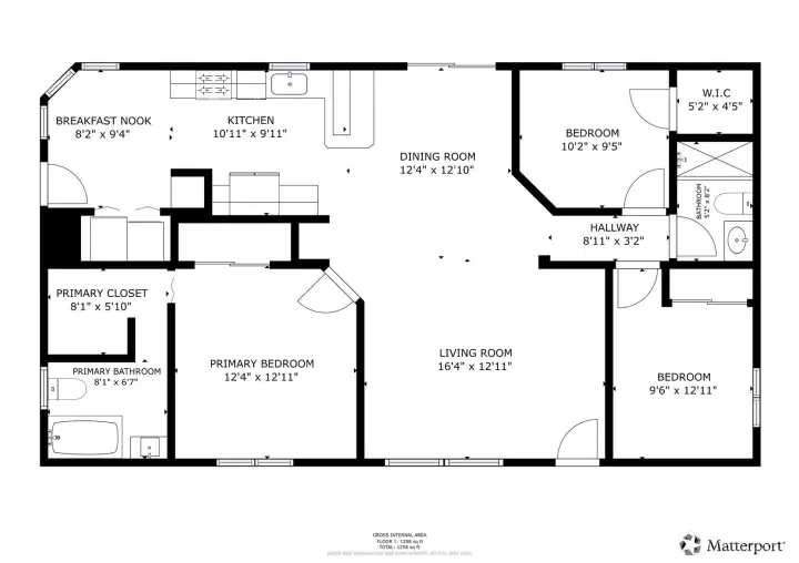
You'll own the land in this 55+ condo community! This one-owner, well-maintained, 1,294 sf, single story residence was purchased and placed in 2002. Reeds Meadow is popular, featuring a $2,000 buyer buy-in fee and low ($110/month) HOA fees. There's a very nice clubhouse for the many community events (it is also available to rent privately,) a lovely pond, and on-site RV storage. The open and airy home boasts 3 bedrooms and 1.75 baths--a walk-in shower (2023,) and a walk-in tub (2022.) A gas furnace was installed in 2021. There is also a mini-split. New fridge 2024. Well over $61,0000 has been invested in this home over the past eight years. The one-car detached garage is large enough for additional storage or a pickup, and has 220 already installed for your electric car. Plenty of space for gardening. Come see!
Watch Virtual Tour #1Property Features
Community: Tracyton
Manuf-Double Wide
Floor: 1
View: Territorial
View: Pond
Age Restriction: Yes
Exterior: Wood Products
Roof: Composition
Parking: Individual Garage
Parking: Off Street
Year Built: 2002
HOA Dues: $110
2025 Taxes: $2545.76
Buyer Broker Comp.: 2.5%
Listing #: 2447859
Lot Details
Lot Size: 0.10 acres
Cul-De-Sac
Dead End Street
Paved
Appliances That Stay
Dishwasher(s)
Dryer(s)
Refrigerator(s)
Stove(s)/Range(s)
Washer(s)
Interior
Cooking-Gas
Dryer-Gas
Ice Maker
Jetted Tub
Skylight(s)
Walk-In Closet(s)
Washer
Insulated Windows
Primary Bathroom
Ground Floor
Vaulted Ceilings
Balcony/Deck/Patio
Ground Floor
Insulated Windows
Jetted/Soaking Tub
Primary Bath
Skylights
Vaulted Ceilings
Walk-in Closet
Yard
Cooling: Ductless HP-Mini Split
Heating: Ductless HP-Mini Split, Forced Air
Electric
Natural Gas
Common Features
Age Restriction
Clubhouse
Schools
District: Central Kitsap #401
Elem: Buyer To Verify
Middle: Buyer To Verify
High: Buyer To Verify
Call or Email:
Grace Wamwere
What's Near 754 NE Reeds Meadow Lane Bremerton, WA 98311?

Information is based on data available to the associate, including county records. The information has not been verified by the associate and all information presented should be verified by the buyer. Listings are provided by Northwest Multiple Listing Service as distributed by MLS GRID. The associate represented on this web site is not a multiple listing service but is a member of a local MLS.
DMCA Notice