20915 259th Avenue SE Maple Valley, WA 98038
20915 259th Avenue SE
Maple Valley, WA 98038
$675,000
Farm & Ranch
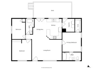
3 Beds
2.00 Baths
1232 SqFt
Pending
Rare, fully equipped equestrian property in quiet Hobart! Enjoy horses in your own backyard: fenced paradise paddock, 5 pastures, round pen, large 3 stall barn w/rubber flooring & run outs & hay drops, tack room, hay loft and 61' x 101' arena. Plus, large 48 x 32 detached garage/car shop with drive through 13ft doors allow ample storage/opportunity. Bright home offers vaulted ceilings, primary ensuite, mudroom and dreamy Japanese soaking jacuzzi. Home updates include: metal siding, gorgeous bathroom remodel, h2o heater, porch, plumbing, newer windows & heat pump. Enjoy a fully organic property w/variety of fruit trees, mason bees and 3 8x8 compost bins. Conveniently located in exceptional Tahoma Schools. A property value that can't be beat!
Watch Virtual Tour #1Property Features
Community: Maple Valley
Manuf-Double Wide
Pool: Above Ground
Exterior: Metal/Vinyl
Roof: Composition
Parking: Detached Garage
Year Built: 1988
2025 Taxes: $6221.80
Buyer Broker Comp.: 2.5%
Listing #: 2447550
Lot Details
Lot Size: 2.27 acres
Farm Type: Equestrian
Irrigation Type: None
Livestock Type: Horse
Appliances That Stay
Dishwasher(s)
Dryer(s)
Refrigerator(s)
Stove(s)/Range(s)
Washer(s)
Interior
Bath Off Primary
Ceiling Fan(s)
Double Pane/Storm Window
Dining Room
Hot Tub/Spa
Vaulted Ceiling(s)
Walk-In Closet(s)
Wired for Generator
Cooling: Heat Pump
Heating: Heat Pump
Electric
Barns / Outbuildings
Barn Type: Livestock
Barn Features: Box Stalls, Loft Area, Multiple Storage
Schools
District: Tahoma
Elem: Tahoma Elementary
Middle: Summit Trail Middle School
High: Tahoma Snr High
Call or Email:
Grace Wamwere
What's Near 20915 259th Avenue SE Maple Valley, WA 98038?

Information is based on data available to the associate, including county records. The information has not been verified by the associate and all information presented should be verified by the buyer. Listings are provided by Northwest Multiple Listing Service as distributed by MLS GRID. The associate represented on this web site is not a multiple listing service but is a member of a local MLS.
DMCA Notice