7621 NE 205th Street Kenmore, WA 98028
7621 NE 205th Street
Kenmore, WA 98028
$960,000
Residential
4 Beds
1.75 Baths
2440 SqFt
Active
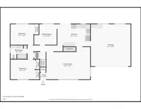
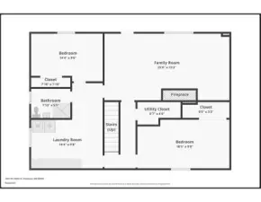
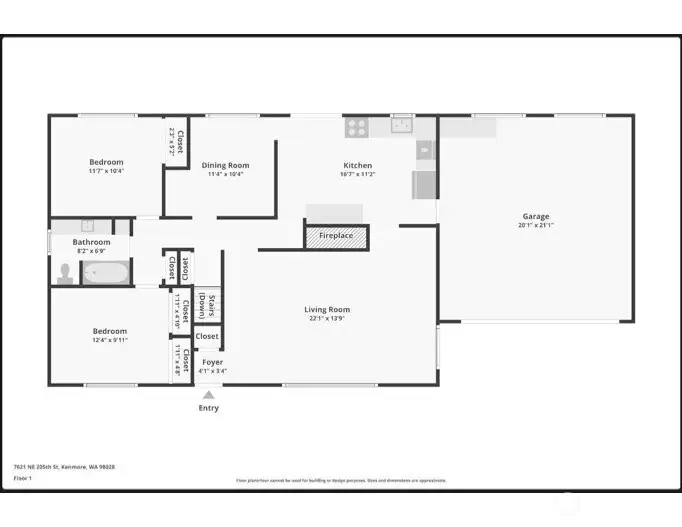
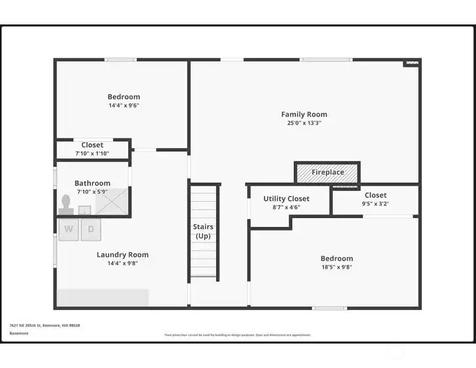
Timeless Mid-Century Classic in Kenmore! Bright, move-in-ready home blends charm w/modern comfort, just mins from parks, Burke-Gilman Trail & Lake WA—ideal for paddleboarding, cycling & sunset strolls. The light-filled main level w/hardwood floors, a welcoming family room w/fireplace and lrg picture window overlooking the lush front yard w/water feature. The kitchen opens to the dining area & covered deck for seamless indoor-outdoor living. Two inviting beds & bath complete the main level. The daylight basement adds two +beds, an updated bath, utility & great room w/2nd FP. Enjoy a private backyard with garden space, fruit trees & 182sqft powered workshop. Northshore Schools (EAP), RV/boat parking, '24 furnace & H2O heater + roof warranty.
Watch Virtual Tour #1Property Features
Community: Kenmore
1 Story w/Bsmnt.
Cable TV
Deck
Fenced-Fully
Gas Available
High Speed Internet
Patio
RV Parking
Exterior: Wood
Roof: Composition
Parking: Driveway
Parking: Attached Garage
Parking: RV Parking
Year Built: 1960
2025 Taxes: $8902.00
Buyer Broker Comp.: 2.5%
Listing #: 2446908
Lot Details
Lot Size: 0.25 acres
Appliances That Stay
Dishwasher(s)
Disposal
Dryer(s)
Microwave(s)
Refrigerator(s)
Stove(s)/Range(s)
Washer(s)
Watch Virtual Tour #2Interior
Double Pane/Storm Window
Dining Room
Fireplace
Skylight(s)
Water Heater
Cooling: None
Heating: Forced Air
Electric
Natural Gas
Fireplaces: 2
Open Houses
Nov 1: 11:00 AM - 1:00 PM
Nov 1: 3:00 PM - 5:00 PM
Nov 2: 1:00 PM - 4:00 PM
Schools
District: Northshore
Elem: Shelton View Elem
Middle: Canyon Park Middle School
High: Bothell Hs
Call or Email:
Grace Wamwere
What's Near 7621 NE 205th Street Kenmore, WA 98028?

Information is based on data available to the associate, including county records. The information has not been verified by the associate and all information presented should be verified by the buyer. Listings are provided by Northwest Multiple Listing Service as distributed by MLS GRID. The associate represented on this web site is not a multiple listing service but is a member of a local MLS.
DMCA Notice