3949 W Barrett Lane Seattle, WA 98199
3949 W Barrett Lane
Seattle, WA 98199
$1,195,000
Residential
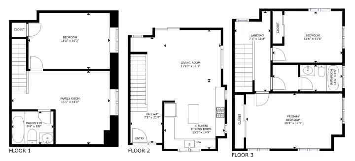
3 Beds
2.00 Baths
1581 SqFt
Active
Stunning new construction modern home located at the highest point in Magnolia on a dead-end lane with incredible privacy. Meticulously designed with smooth finishes and custom details throughout, this home offers great views of the mountains and Puget Sound! 3 beds + 2 full baths + spacious media room. Thoughtfully designed floor plan featuring a chef’s kitchen, beautiful entry, and great room living on the main. Top floor has two bedrooms with an oversized primary as well as laundry. Downstairs has large media room, full bathroom, and bedroom. Dedicated parking spot with EV charger. Empty playfield next door offers open space for all residents. Located in the coveted Catharine Blaine school district! See MLS#XXXXXXX for attached SFR.
Watch Virtual Tour #1Property Features
Community: Magnolia
Multi Level
View: City
View: Mountain(s)
View: Sound
View: Territorial
Cable TV
Electric Car Charging
Fenced-Partially
High Speed Internet
Patio
Rooftop Deck
New Construction: Yes
Exterior: Cement Planked
Roof: Metal
Parking: Driveway
Parking: Attached Garage
Year Built: 2025
HOA Dues: $2
2025 Taxes: $500.00
Buyer Broker Comp.: 2%
Listing #: 2445590
Lot Details
Lot Size: 0.05 acres
Cul-De-Sac
Dead End Street
Open Space
Paved
Secluded
Appliances That Stay
Dishwasher(s)
Disposal
Microwave(s)
Refrigerator(s)
Stove(s)/Range(s)
Interior
Double Pane/Storm Window
Dining Room
Fireplace
High Tech Cabling
Skylight(s)
Vaulted Ceiling(s)
Walk-In Closet(s)
Water Heater
Cooling: High Efficiency (Unspecified), Ductless HP-Mini Split, 90%+ High Efficiency
Heating: HRV/ERV System, Hot Water Recirc Pump, Ductless HP-Mini Split, 90%+ High Efficiency, Heat Pump
Electric
Fireplaces: 1
Open Houses
Oct 23: 5:00 PM - 7:00 PM
Oct 25: 2:00 PM - 4:00 PM
Oct 26: 11:00 AM - 1:00 PM
Call or Email:
Grace Wamwere
What's Near 3949 W Barrett Lane Seattle, WA 98199?

Information is based on data available to the associate, including county records. The information has not been verified by the associate and all information presented should be verified by the buyer. Listings are provided by Northwest Multiple Listing Service as distributed by MLS GRID. The associate represented on this web site is not a multiple listing service but is a member of a local MLS.
DMCA Notice