2452 W Lake Sammamish Parkway NE Redmond, WA 98052
2452 W Lake Sammamish Parkway NE
Redmond, WA 98052
$3,225,000
Residential
5 Beds
3.50 Baths
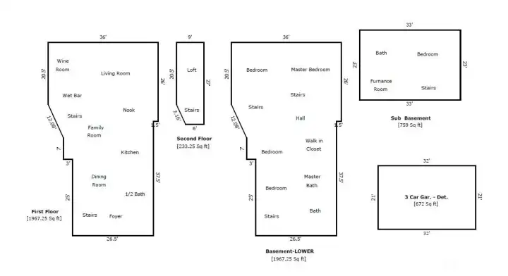
4926 SqFt
Pending
Breathtaking views of Lake Sammamish set the stage for this modern sanctuary just minutes from Microsoft. Nearly 2,000 SF on the main level is flooded with natural light through floor-to-ceiling windows, with an open layout flowing to a view deck perfect for entertaining. An elevated office offers commanding lake views and up to 10Gb fiber internet, while a lower-level suite adapts as a 2nd office, gym, or guest retreat. Automated lighting, A/C, whole-home humidifier, generator, and a 1,000-bottle wine room elevate everyday living. The primary suite boasts a private deck, heated floors, and sophisticated finishes. A 3-car garage with EV charger, plus 4 additional parking spaces, complete this tech-forward home with ever-changing lake views.
Watch Virtual Tour #1Property Features
Community: West Lake Sammamish
2 Stories w/Bsmnt
View: Lake
View: Mountain(s)
View: Territorial
Cable TV
Deck
Dog Run
Electric Car Charging
Fenced-Fully
Gas Available
High Speed Internet
Outbuildings
Patio
Shop
Sprinkler System
Exterior: Stone
Exterior: Wood
Roof: Torch Down
Parking: Detached Garage
Year Built: 1995
2025 Taxes: $19728.00
Buyer Broker Comp.: 2.5%
Listing #: 2445378
Lot Details
Lot Size: 0.23 acres
Dead End Street
Paved
Appliances That Stay
Dishwasher(s)
Disposal
Double Oven
Dryer(s)
Microwave(s)
Refrigerator(s)
Stove(s)/Range(s)
Washer(s)
Watch Virtual Tour #2Interior
Bath Off Primary
Double Pane/Storm Window
Dining Room
Fireplace
High Tech Cabling
Security System
Skylight(s)
Vaulted Ceiling(s)
Walk-In Closet(s)
Water Heater
Wet Bar
Wine Cellar
Wired for Generator
Cooling: Central A/C, High Efficiency (Unspecified), Forced Air, Heat Pump
Heating: High Efficiency (Unspecified), Heat Pump, Forced Air
Natural Gas
Fireplaces: 1
Schools
District: Lake Washington
Elem: Audubon Elem
Middle: Redmond Middle
High: Redmond High
Call or Email:
Grace Wamwere
What's Near 2452 W Lake Sammamish Parkway NE Redmond, WA 98052?

Information is based on data available to the associate, including county records. The information has not been verified by the associate and all information presented should be verified by the buyer. Listings are provided by Northwest Multiple Listing Service as distributed by MLS GRID. The associate represented on this web site is not a multiple listing service but is a member of a local MLS.
DMCA Notice