10713 15th Ave NE Seattle, WA 98125
10713 15th Ave NE
Seattle, WA 98125
$650,000
Residential
4 Beds
2.00 Baths
1930 SqFt
Active
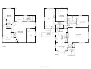
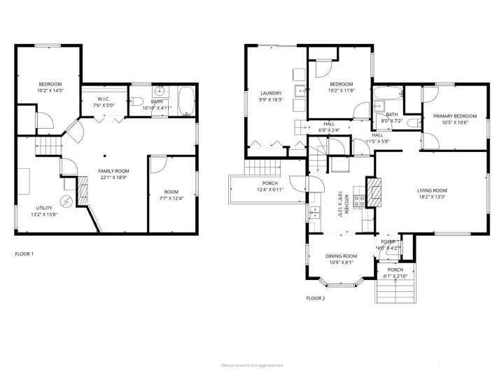
Bring your vision! Unlock the potential of this North Seattle property on a large, level 8,160 sq ft lot. The 1,930 sq ft home features two fireplaces, two bedrooms and main living area upstairs, a spacious utility/laundry room, and a lower level with two non-conforming bedrooms and a generous family room. The home needs work but offers exceptional upside for remodelers, investors, or builders. Fully fenced yard with private driveway. Remodel, expand, or explore redevelopment opportunities—endless possibilities await (buyer to verify).
Property Features
Community: Maple Leaf
1 Story w/Bsmnt.
Deck
Fenced-Fully
Outbuildings
Exterior: Wood Products
Roof: Composition
Parking: Driveway
Year Built: 1940
2025 Taxes: $7219.00
Buyer Broker Comp.: 3%
Listing #: 2445339
Lot Details
Lot Size: 0.19 acres
Appliances That Stay
Dishwasher(s)
Dryer(s)
Stove(s)/Range(s)
Washer(s)
Interior
Dining Room
Fireplace
Cooling: None
Heating: Forced Air
Natural Gas
Fireplaces: 2
Schools
District: Seattle
Elem: Olympic View
Middle: Jane Addams
High: Nathan Hale High
Call or Email:
Grace Wamwere
What's Near 10713 15th Ave NE Seattle, WA 98125?

Information is based on data available to the associate, including county records. The information has not been verified by the associate and all information presented should be verified by the buyer. Listings are provided by Northwest Multiple Listing Service as distributed by MLS GRID. The associate represented on this web site is not a multiple listing service but is a member of a local MLS.
DMCA Notice