9023 McConnell Drive #A Moses Lake, WA 98837
9023 McConnell Drive #A
Moses Lake, WA 98837
$199,990
Residential
3 Beds
1.50 Baths
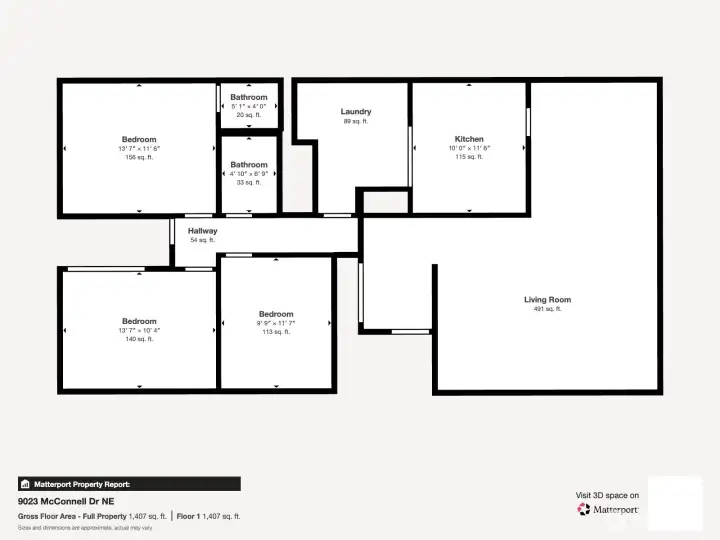
1454 SqFt
Active
MOTIVATED SELLER! Affordable opportunity in Moses Lake, WA with strong upside potential for both investors and owner-occupants. This 3-bedroom, 1.5-bath home offers 1,454 sq ft with a functional layout, including a bright living area, dining space, and kitchen designed for everyday use. With a 10+ year rental history, this property presents a proven track record for consistent occupancy, making it an attractive option for investors seeking a rental opportunity or long-term hold. The home features an attached garage and a large fenced backyard, adding both convenience and value. While ready for cosmetic updates, this creates an opportunity to build equity and improve over time. Located in an established Moses Lake neighborhood just minutes from town, this property offers a combination of affordability, functionality, and future potential. A great opportunity to secure an entry-level investment or personal residence with upside.
Watch Virtual Tour #1Property Features
Community: Larson
1 Story
View: Territorial
Fenced-Partially
Patio
Exterior: Wood
Exterior: Wood Products
Roof: Composition
Parking: Driveway
Parking: Off Street
Year Built: 1961
2025 Taxes: $968.00
Buyer Broker Comp.: 3%
Listing #: 2445329
Lot Details
Lot Size: 0.27 acres
Lot Dimensions: 76' x 176' x 70' x 156'
Paved
Sidewalk
Appliances That Stay
Dishwasher
Stove(s)/Range(s)
Watch Virtual Tour #2Interior
Bath Off Primary
Ceiling Fan(s)
Dining Room
Water Heater
Cooling: Wall Unit(s)
Heating: Baseboard
Electric
Schools
District: Moses Lake
Elem: Buyer To Verify
Middle: Buyer To Verify
High: Buyer To Verify
Call or Email:
Grace Wamwere
What's Near 9023 McConnell Drive #A Moses Lake, WA 98837?

Information is based on data available to the associate, including county records. The information has not been verified by the associate and all information presented should be verified by the buyer. Listings are provided by Northwest Multiple Listing Service as distributed by MLS GRID. The associate represented on this web site is not a multiple listing service but is a member of a local MLS.
DMCA Notice