4131 Peninsula Road Stanwood, WA 98292
4131 Peninsula Road
Stanwood, WA 98292
$3,998,000
Residential
4 Beds
3.75 Baths
4190 SqFt
Pending
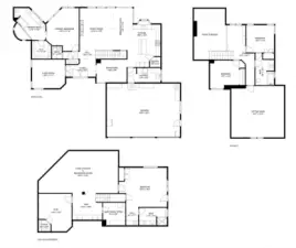
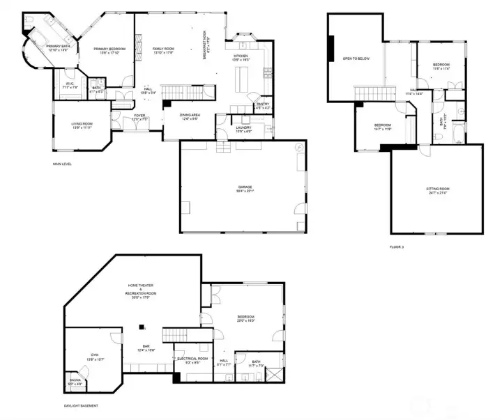
Experience ultimate lakefront living on Lake Goodwin—where gated entry meets resort-style living. Exceptional estate looks straight down the lake and spans 1.43 acres with 200 feet of west-facing shoreline, offering all-day sunshine and breathtaking sunsets. Enjoy main-level primary suite, home office, large flex room, and theatre with separate MIL space. Step outside to an entertainer’s paradise with a covered, heated deck, over 2,600 sq. ft. of patio space, hot tub, w/ expansive lake views. 3-car garage, PLUS 1,280 sq. ft. detached shop with mezzanine, boat shed, new dock—pickleball and basketball courts, orchard, chicken coop, treehouse, and RV parking with hookups. Every detail is designed for relaxation, recreation, and refined living.
Property Features
Community: Lake Goodwin
2 Stories w/Bsmnt
View: Lake
Waterfront: Lake
Waterfront: No Bank
Athletic Court
Boat House
Deck
Dock
Fenced-Fully
Gated Entry
Hot Tub/Spa
Moorage
Patio
RV Parking
Shop
Exterior: Cement Planked
Roof: Composition
Parking: Attached Garage
Parking: Detached Garage
Parking: RV Parking
Year Built: 1993
2025 Taxes: $16789.00
Buyer Broker Comp.: 2.5%
Listing #: 2445226
Lot Details
Lot Size: 1.43 acres
Cul-De-Sac
Paved
Appliances That Stay
Dishwasher(s)
Disposal
Double Oven
Dryer(s)
Microwave(s)
Refrigerator(s)
Stove(s)/Range(s)
Washer(s)
Interior
Second Primary Bedroom
Bath Off Primary
Built-In Vacuum
Double Pane/Storm Window
Dining Room
Fireplace
French Doors
High Tech Cabling
Hot Tub/Spa
Loft
Sauna
Skylight(s)
Vaulted Ceiling(s)
Walk-In Pantry
Walk-In Closet(s)
Water Heater
Wet Bar
Cooling: Central A/C, High Efficiency (Unspecified), Forced Air, Heat Pump
Heating: High Efficiency (Unspecified), Heat Pump, Forced Air
Electric
Fireplaces: 1
Community Features
Boat Launch
Schools
District: Lakewood
Elem: Buyer To Verify
Middle: Lakewood Mid
High: Lakewood High
Call or Email:
Grace Wamwere
What's Near 4131 Peninsula Road Stanwood, WA 98292?

Information is based on data available to the associate, including county records. The information has not been verified by the associate and all information presented should be verified by the buyer. Listings are provided by Northwest Multiple Listing Service as distributed by MLS GRID. The associate represented on this web site is not a multiple listing service but is a member of a local MLS.
DMCA Notice