200 10th Street #65 Gold Bar, WA 98251
200 10th Street #65
Gold Bar, WA 98251
$185,000
Manufactured Home
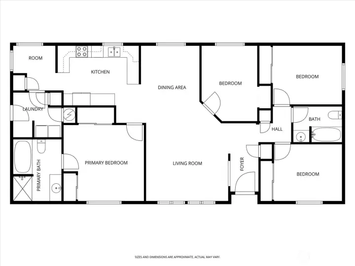
3 Beds
2.00 Baths
1512 SqFt
Active
This beautifully updated 3-bed + den, 2-bath home blends comfort and charm in all the right ways. ALL AGES PARK! Step inside to an open, airy layout featuring a bright kitchen, dining, and living area—perfect for everyday living or easy entertaining. The primary suite offers a spacious retreat with a relaxing 6’ soaking tub, while two additional bedrooms and a den/office provide room for everyone (and everything). New LVP flooring, separate laundry room, backyard with garden shed. Exterior updates include new concrete plank siding and a newer roof, giving peace of mind for years to come. Adventure awaits right outside: Wallace Falls State Park, Reiter Foothills, whitewater rafting, & Stevens Pass are just a short drive!
Property Features
Community: Gold Bar
Manuf-Double Wide
View: City
View: Mountain(s)
Exterior: Cement Planked
Roof: Composition
Parking: Uncovered
Year Built: 1993
2025 Taxes: $0.00
Buyer Broker Comp.: Request in Offer
Listing #: 2445005
Lot Details
Lot Size: 17.40 acres
Paved
Appliances That Stay
Dishwasher(s)
Dryer(s)
Refrigerator(s)
Stove(s)/Range(s)
Washer(s)
Interior
Bath Off Primary
Double Pane Windows
Drapes
Landscaped
Patio/Porch/Deck
Vaulted Ceilings
Cooling: None
Heating: Forced Air
Electric
Pets
Cats OK
Dogs OK
See Remarks
Schools
District: Sultan
Elem: Buyer To Verify
Middle: Buyer To Verify
High: Buyer To Verify
Call or Email:
Grace Wamwere
What's Near 200 10th Street #65 Gold Bar, WA 98251?

Information is based on data available to the associate, including county records. The information has not been verified by the associate and all information presented should be verified by the buyer. Listings are provided by Northwest Multiple Listing Service as distributed by MLS GRID. The associate represented on this web site is not a multiple listing service but is a member of a local MLS.
DMCA Notice