11810 SE 323rd Place SE Auburn, WA 98092
11810 SE 323rd Place SE
Auburn, WA 98092
$1,140,000
Residential
5 Beds
4.25 Baths
2755 SqFt
Active
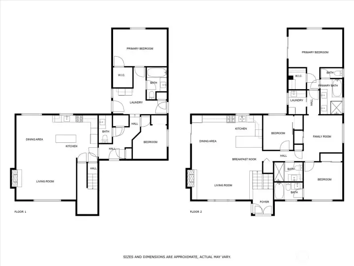
Motivated Seller! Discover exceptional flexibility and modern comfort in this fully remodeled 2024 Auburn home. Designed for multi-generational living, it offers 5 bedrooms, 4.5 baths, 2 kitchens, and dual primary suites across two levels—each with its own laundry. The lower level features a private entrance, kitchen, and living area, ideal for guests or rental income. Vaulted ceilings with skylights, new roof, windows, stucco siding with added insulation, and updated finishes throughout ensure move-in confidence. Enjoy a fully fenced yard with hot tub and outdoor kitchen, perfect for entertaining. Situated in one of Auburn’s most convenient locations near Green River College, parks, and shopping, with no HOA.
Watch Virtual Tour #1Property Features
Community: Auburn
Split Entry
Deck
Fenced-Fully
Gas Available
High Speed Internet
Exterior: Stucco
Exterior: Wood
Roof: Composition
Parking: Driveway
Parking: Off Street
Year Built: 1968
2025 Taxes: $5851.99
Buyer Broker Comp.: 2.5%
Listing #: 2443287
Lot Details
Lot Size: 0.17 acres
Cul-De-Sac
Dead End Street
Paved
Sidewalk
Appliances That Stay
Dishwasher(s)
Dryer(s)
Microwave(s)
Refrigerator(s)
Stove(s)/Range(s)
Washer(s)
Interior
Second Kitchen
Second Primary Bedroom
Bath Off Primary
Double Pane/Storm Window
Fireplace
Hot Tub/Spa
Skylight(s)
Vaulted Ceiling(s)
Walk-In Closet(s)
Cooling: Ductless HP-Mini Split
Heating: Ductless HP-Mini Split, Forced Air
Electric
Fireplaces: 2
Open Houses
Oct 11: 12:00 PM - 2:00 PM
Schools
District: Auburn
Elem: Lea Hill Elem
Middle: Rainier Mid
High: Mountainview High
Call or Email:
Grace Wamwere
What's Near 11810 SE 323rd Place SE Auburn, WA 98092?

Information is based on data available to the associate, including county records. The information has not been verified by the associate and all information presented should be verified by the buyer. Listings are provided by Northwest Multiple Listing Service as distributed by MLS GRID. The associate represented on this web site is not a multiple listing service but is a member of a local MLS.
DMCA Notice