1200 6th Avenue N #6 Seattle, WA 98109
1200 6th Avenue N #6
Seattle, WA 98109
$330,000
Condominium
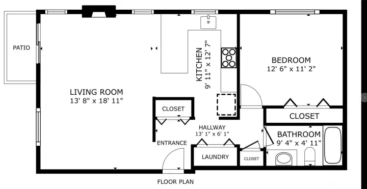
1 Beds
1.00 Baths
688 SqFt
Active
Charming 1-bedroom condo on Queen Anne’s South Slope in a quiet 10-unit building. Enjoy a cozy fireplace, updated paint, full-size washer & dryer, and private balcony. Includes secure garage parking, extra storage, lobby with elevator, and an efficient HOA. Fantastic location with a Walk Score of 83—just steps to Seattle Center, shops, restaurants, and transit. Easy access to Hwy 99 and South Lake Union. Live in a vibrant, walkable neighborhood while enjoying the peace of a small, well-maintained community. A perfect blend of comfort, convenience, and city living!
Watch Virtual Tour #1Property Features
Community: Queen Anne
Condo (3 Levels)
Floor: 2
View: Territorial
Bus Line Nearby: Yes
Exterior: Cement/Concrete
Exterior: Stucco
Roof: Flat
Parking: Common Garage
Year Built: 1979
HOA Dues: $319
2025 Taxes: $3431.00
Buyer Broker Comp.: 2.5%%
Listing #: 2440030
Lot Details
Corner Lot
Curbs
Paved
Sidewalk
Appliances That Stay
Dryer(s)
Refrigerator(s)
Stove(s)/Range(s)
Washer(s)
Interior
Cooking-Electric
Dryer-Electric
Fireplace
Washer
Water Heater
Balcony/Deck/Patio
Cooling: None
Heating: Heat Pump
Electric
Fireplaces: 1
Schools
District: Seattle
Elem: Queen Anne
Middle: Mc Clure Mid
High: Center School
Call or Email:
Grace Wamwere
What's Near 1200 6th Avenue N #6 Seattle, WA 98109?

Information is based on data available to the associate, including county records. The information has not been verified by the associate and all information presented should be verified by the buyer. Listings are provided by Northwest Multiple Listing Service as distributed by MLS GRID. The associate represented on this web site is not a multiple listing service but is a member of a local MLS.
DMCA Notice