3814 174th Avenue NW Lakebay, WA 98349
3814 174th Avenue NW
Lakebay, WA 98349
$384,888
Residential
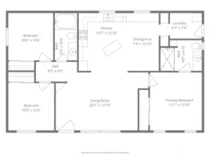
3 Beds
1.75 Baths
1188 SqFt
Pending
Fresh Updates, Open Spaces, Endless Possibilities! Nestled on a 1.55-ac lot, this 2009-built home features 3bed/1.75 ba. You’ll love the wide-open layout with vaulted ceilings, skylights, and abundant windows that flood the home with natural light while framing views of the outdoors. The spacious living room flows seamlessly into the kitchen/dining area, and the oversized primary suite features its own private ¾ bath. Step out to the large deck—perfect for entertaining. Recent upgrades include a new roof (2022), fresh interior & exterior paint, new carpet, LVP flooring, and brand new stainless appliances. Plus, there’s plenty of room to add a garage, shop, or outbuildings. Move-in ready with room to grow—bring your vision and make it yours!
Watch Virtual Tour #1Property Features
Community: Lakebay
Manuf-Double Wide
Cable TV
Deck
Fenced-Partially
High Speed Internet
Outbuildings
RV Parking
Exterior: Wood Products
Roof: Composition
Parking: Driveway
Parking: RV Parking
Year Built: 2009
2025 Taxes: $2796.00
Buyer Broker Comp.: 2.5%
Listing #: 2439842
Lot Details
Lot Size: 1.55 acres
Corner Lot
Dead End Street
Dirt Road
Paved
Appliances That Stay
Dishwasher(s)
Microwave(s)
Stove(s)/Range(s)
Interior
Bath Off Primary
Double Pane/Storm Window
Skylight(s)
Cooling: None
Heating: Forced Air
Electric
Schools
District: Peninsula
Elem: Evergreen Elem
Middle: Key Peninsula Mid
High: Peninsula High
Call or Email:
Grace Wamwere
What's Near 3814 174th Avenue NW Lakebay, WA 98349?

Information is based on data available to the associate, including county records. The information has not been verified by the associate and all information presented should be verified by the buyer. Listings are provided by Northwest Multiple Listing Service as distributed by MLS GRID. The associate represented on this web site is not a multiple listing service but is a member of a local MLS.
DMCA Notice