19 Valley Crest Way Bellingham, WA 98229
19 Valley Crest Way
Bellingham, WA 98229
$148,500
Land
0 Beds
0.00 Baths
0 SqFt
Active
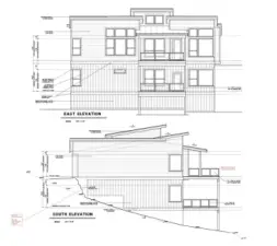
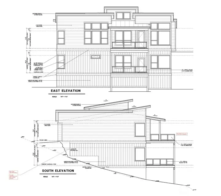
Fully permitted Lot in Sudden Valley seconds away from Gate 3. All permits are approved for a thoughtfully designed 2,580 SF home by JWR Design Inc. Architectural, structural, and civil plans are complete and ready to go, allowing you to start building June 1, 2026. All the hard work like design, engineering, and permitting has been done. Both county and Sudden Valley permits have been paid for. The project has already been appraised at 800k offering excellent value and a clear path to construction. A great opportunity to bring your new home to life in Sudden Valley.
Property Features
Community: Sudden Valley
Res-Less thn 1 Ac
View: Territorial
Corners Flagged
Evergreens
Lightly Treed
Pool: Above Ground
2025 Taxes: $159.29
Buyer Broker Comp.: 3%
Listing #: 2438828
Lot Details
Lot Size: 0.17 acres
Lot Dimensions: 90x92
Paved
Topography: Sloped
Road Sides: West
Road: County Maintained
Road: Paved
Utilities
Electricity: In Street
Water: Available
Water: In Street
Gas: Not Available
Sewer: In Street
Community Features
CCRs
Club House
Golf
Schools
District: Bellingham
Elem: Geneva Elem
Middle: Kulshan Mid
High: Bellingham High
Call or Email:
Grace Wamwere
What's Near 19 Valley Crest Way Bellingham, WA 98229?

Information is based on data available to the associate, including county records. The information has not been verified by the associate and all information presented should be verified by the buyer. Listings are provided by Northwest Multiple Listing Service as distributed by MLS GRID. The associate represented on this web site is not a multiple listing service but is a member of a local MLS.
DMCA Notice