20433 Mystic Place E Bonney Lake, WA 98391
20433 Mystic Place E
Bonney Lake, WA 98391
$889,950
Residential
5 Beds
4.50 Baths
3355 SqFt
Active
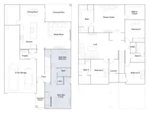
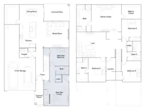
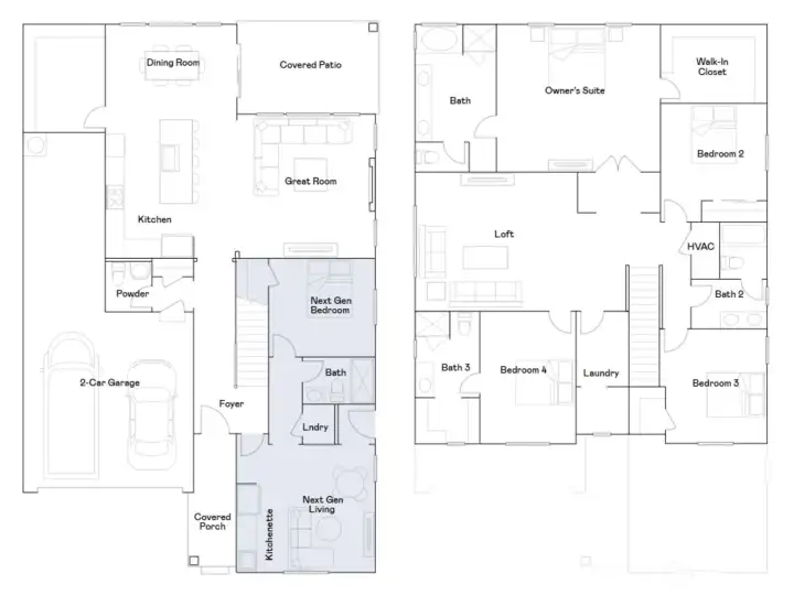
Welcome to the Whidbey Next Gen at Tehaleh Glacier Pointe by Lennar! Located on a quiet cul-de-sac street, this home sits on a large homesite with a spacious backyard, offering plenty of room for outdoor living, entertaining, or play. The open-concept main level features a contemporary kitchen with stainless steel appliances, matte black hardware, and luxury plank flooring that enhances the entire space. A covered patio extends the living area outdoors for entertaining or relaxation. The Next Gen® suite offers a private entrance, bedroom, kitchenette, and living area for flexible living. Upstairs, the owner’s suite and three additional bedrooms are centered around a versatile loft, perfect for work, play, or leisure. This home is move-in ready! With Lennar’s signature Everything’s Included®, you’ll find stainless steel appliances, quartz countertops, shaker-style cabinetry and more—all at no extra cost. Buyer’s broker must be registered during the customer’s first interaction with a Lennar Associate to be eligible for compensation.
Watch Virtual Tour #1Property Features
Community: Tehaleh
2 Story
Fenced-Fully
New Construction: Yes
Exterior: Cement Planked
Exterior: Wood
Roof: Composition
Parking: Attached Garage
Year Built: 2025
HOA Dues: $88
2026 Taxes: $12254.00
Buyer Broker Comp.: 3%
Listing #: 2438516
Lot Details
Lot Size: 0.15 acres
Curbs
Paved
Sidewalk
Appliances That Stay
Dishwasher(s)
Disposal
Microwave(s)
Refrigerator(s)
See Remarks
Stove(s)/Range(s)
Interior
Bath Off Primary
Dining Room
Loft
Security System
Walk-In Pantry
Walk-In Closet(s)
Cooling: 90%+ High Efficiency
Heating: 90%+ High Efficiency
Electric
Community Features
CCRs
Park
Playground
Schools
District: Orting
Elem: Buyer To Verify
Middle: Buyer To Verify
High: Buyer To Verify
Call or Email:
Grace Wamwere
What's Near 20433 Mystic Place E Bonney Lake, WA 98391?

Information is based on data available to the associate, including county records. The information has not been verified by the associate and all information presented should be verified by the buyer. Listings are provided by Northwest Multiple Listing Service as distributed by MLS GRID. The associate represented on this web site is not a multiple listing service but is a member of a local MLS.
DMCA Notice