3611 I Street NE #237 Auburn, WA 98002
3611 I Street NE #237
Auburn, WA 98002
$159,950
Manufactured Home
2 Beds
2.00 Baths
1536 SqFt
Active
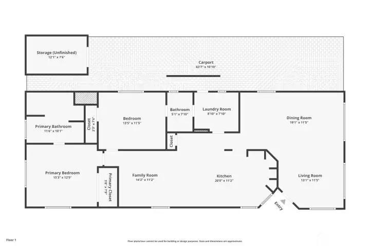
Brighten up your life in Unit 237 a Spacious Home at The River Estates in North Auburn~You'll enjoy the Peaceful Vibe at this Fantastic Community~See Walk-Through Tour Attached~ 2 Large Bedrooms, 2 Full Bathrooms~Brand New Furnace w/10 year Warranty~Full size Washer Dryer~Laundry Room w/ample Storage~Laminate wood flooring throughout w/Carpet in Living Room~Spacious Kitchen; Stove, Microwave, Dishwasher, Refrigerator, Pantries w/turntable shelves~Garbage Disposal~Skylight~Plentiful Storage~Brand New Insulation~Wood Burning Stove will save on winter heating costs~Covered Porch and Ramp for all access~Carport & Shed w/Electricity~Enjoy Swimming Pool, Hot tub. Daily activities: Bingo, Pinochle, Exercise class, Billiards, Potlucks & Socials!
Watch Virtual Tour #1Property Features
Community: Auburn
Manuf-Double Wide
Unit Can Stay: Yes
Age Restriction: Yes
Bus Line Nearby: Yes
Exterior: Wood
Exterior: Wood Products
Roof: Composition
Parking: Carport
Year Built: 1980
2025 Taxes: $0.00
Buyer Broker Comp.: 2.5%
Listing #: 2438480
Lot Details
Paved
Units in Park: 314
Appliances That Stay
Dishwasher(s)
Disposal
Dryer(s)
Microwave(s)
Refrigerator(s)
Stove(s)/Range(s)
Washer(s)
Interior
Bath Off Primary
Ceiling Fan(s)
Double Pane Windows
Drapes
Jetted/Soaking Tub
Landscaped
Patio/Porch/Deck
Skylights
Vaulted Ceilings
Cooling: None
Heating: Forced Air
Electric
Fireplaces: 1
Open Houses
Oct 11: 11:00 AM - 2:00 PM
Call or Email:
Grace Wamwere
What's Near 3611 I Street NE #237 Auburn, WA 98002?

Information is based on data available to the associate, including county records. The information has not been verified by the associate and all information presented should be verified by the buyer. Listings are provided by Northwest Multiple Listing Service as distributed by MLS GRID. The associate represented on this web site is not a multiple listing service but is a member of a local MLS.
DMCA Notice