1439 121st Avenue SE #MB 07 Lake Stevens, WA 98258

Entry of home

open concept living space

open loft on upper floor

Loft

Walk in closet

soaking tub in primary bathroom

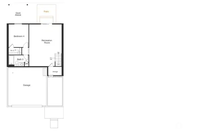
Basement rec-room

back yard

Community Park

Basement layout

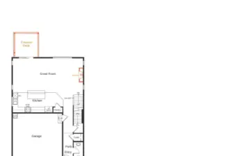
Main floor layout

Upper level layout

Upper level layout

Lower/Basement level layout

Upper level layout
1439 121st Avenue SE #MB 07
Lake Stevens, WA 98258
$799,950
Residential
4 Beds
3.50 Baths
2761 SqFt
Active
Sought after open layout with expansive great room ideal for everyday living and entertaining. The modern kitchen offers Gas cooking, a generous island, and ample workspace. The primary suite provides a relaxing retreat with a walk-in closet and a spa-inspired bath complete with dual vanities, a soaking tub and a walk-in shower. The daylight basement adds versatility with a large rec room, fourth bedroom, and full bath. Step outside to unwind on the back patio overlooking the landscaped, fully fenced backyard. Enjoy commuter-friendly access to Hwy 2 & I-5. Outdoor recreation abounds at nearby Stevens Pass and Mt. Pilchuck. Close to Paine Field & Boeing.
Watch Virtual Tour #1Property Features
Community: Lake Stevens
2 Stories w/Bsmnt
View: Territorial
Electric Car Charging
Fenced-Fully
Gas Available
New Construction: Yes
Exterior: Cement Planked
Roof: Composition
Parking: Attached Garage
Parking: Detached Garage
Parking: Off Street
Year Built: 2025
HOA Dues: $102
2025 Taxes: $0.00
Buyer Broker Comp.: 2%
Listing #: 2435522
Lot Details
Lot Size: 0.08 acres
Paved
Sidewalk
Appliances That Stay
Dishwasher
Disposal
Microwave
Refrigerator
Stove(s)/Range(s)
Watch Virtual Tour #2Interior
Bath Off Primary
Dining Room
Fireplace
Loft
Walk-In Closet(s)
Dbl Pane/Storm Window
Cooling: 90%+ High Efficiency
Heating: 90%+ High Efficiency, Heat Pump, Forced Air, Wall Furnace
Electric
Natural Gas
See Remarks
Fireplaces: 1
Enviromental Certs
Northwest ENERGY STARĀ®
Community Features
CCRs
Playground
Open Houses
May 21: 11:00 AM - 5:00 PM
May 22: 11:00 AM - 5:00 PM
May 23: 11:00 AM - 5:00 PM
May 24: 11:00 AM - 5:00 PM
May 25: 1:00 PM - 5:00 PM
May 26: 11:00 AM - 5:00 PM
May 27: 11:00 AM - 5:00 PM
May 28: 11:00 AM - 5:00 PM
May 29: 11:00 AM - 5:00 PM
Schools
District: Snohomish
Elem: Cascade View Elem
Middle: Centennial Mid
High: Snohomish High
Call or Email:
Grace Wamwere
What's Near 1439 121st Avenue SE #MB 07 Lake Stevens, WA 98258?

Information is based on data available to the associate, including county records. The information has not been verified by the associate and all information presented should be verified by the buyer. Listings are provided by Northwest Multiple Listing Service as distributed by MLS GRID. The associate represented on this web site is not a multiple listing service but is a member of a local MLS.
DMCA Notice