11305 W Ibberson Drive Everett, WA 98208
11305 W Ibberson Drive
Everett, WA 98208
$785,000
Residential
4 Beds
2.50 Baths
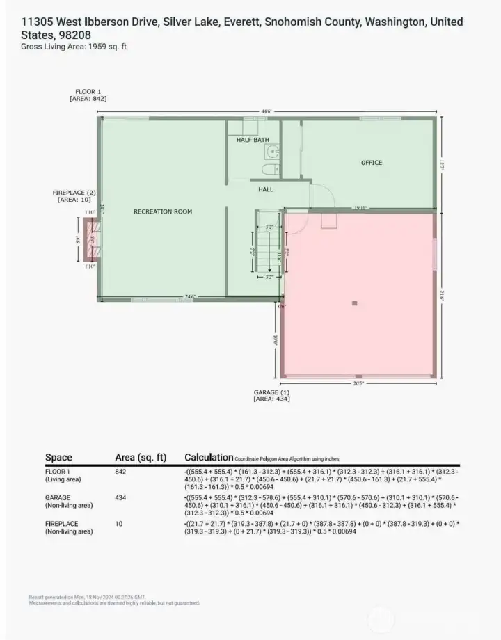
1912 SqFt
Active
 
 
 
Discover a tranquil setting at Silver Lake! Just 100 yards from the water, this property has unique access to a shared beach, grassy lawn, and 2 docks. Enjoy the peaceful atmosphere while being close to several amenities including grocery store, restaurants, shops, and the beautiful Silver Lake Park. This classic mid-entry home has fresh interior paint, new carpet on main floor,  and offers over 1,900 square feet of living space with 4 bedrooms and a spacious rec room—ideal for multi-generational living or a separate suite. The generous backyard provides room for gardening and is perfect area for your pet to play. The community area on the lake includes the gated area, the vegetation area for privacy/habitat of lake wildlife, and docks.
Property Features
Community: Silver Lake
Split Entry
Cable TV
Deck
Fenced-Fully
High Speed Internet
Patio
RV Parking
Exterior: Wood
Roof: Metal
Parking: Attached Garage
Parking: RV Parking
Year Built: 1973
2025 Taxes: $5078.00
Buyer Broker Comp.: 3%
Listing #: 2433606
Lot Details
Lot Size: 0.20 acres
Paved
Appliances That Stay
Dishwasher(s)
Dryer(s)
Refrigerator(s)
Stove(s)/Range(s)
Interior
Fireplace
Cooling: Central A/C
Heating: Forced Air
Electric
Fireplaces: 2
Schools
District: Everett
Elem: Silver Lake Elem
Middle: Eisenhower Mid
High: Cascade High
 
Call or Email:
Grace Wamwere
 
 
What's Near 11305 W Ibberson Drive Everett, WA 98208?
 

Information is based on data available to the associate, including county records.  The information has not been verified by the associate and all information presented should be verified by the buyer. Listings are provided by Northwest Multiple Listing Service as distributed by MLS GRID. The associate represented on this web site is not a multiple listing service but is a member of a local MLS.
DMCA Notice