9219 14th Avenue NW Seattle, WA 98117
9219 14th Avenue NW
Seattle, WA 98117
$849,900
Condominium
3 Beds
3.25 Baths
1637 SqFt
Pending
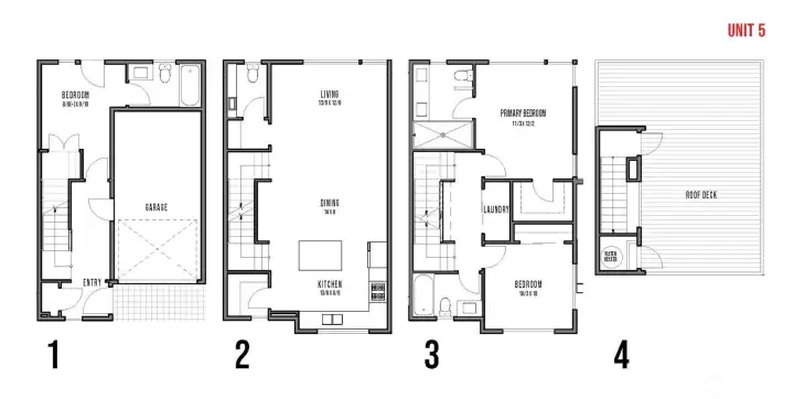
Rates as low as 1.99%* - This home built by esteemed builder Shelter Homes, boasts a 1-car garage, Bed/Bath on entry level w/access to rear patio - Next level = a stunning kitchen w/walk-in pantry, large island w/seating, dining space, great room & 1/2 bath! 2 bedrooms on the 3rd level plus great primary suite, side by side laundry & access to the roof deck w/ Mtn views & more! EV-Capable - Power & Water on the level-surface roof deck, courtyard access & more! Across from Crown Hill Park, close proximity to restaurants, shopping (Met Mrkt), recreation (Golden Gardens), transit & all of what you love about Ballard! *Terms Apply
Watch Virtual Tour #1Property Features
Community: Crown Hill
Townhouse
Floor: 1
View: Mountain(s)
View: Territorial
New Construction: Yes
Bus Line Nearby: Yes
Exterior: Cement Planked
Roof: Flat
Parking: Individual Garage
Year Built: 2025
HOA Dues: $68
2025 Taxes: $1.00
Buyer Broker Comp.: 2.5%
Listing #: 2429280
Lot Details
Lot Size: 0.01 acres
Curbs
Paved
Sidewalk
Appliances That Stay
Dishwasher(s)
Disposal
Microwave(s)
Refrigerator(s)
Stove(s)/Range(s)
Interior
Water Heater
Cooling: Ductless HP-Mini Split
Heating: Ductless HP-Mini Split, Wall Unit(s)
Electric
Enviromental Certs
Built Green™
Schools
District: Seattle
Elem: North Beach
Middle: Whitman Mid
High: Ingraham High
Call or Email:
Grace Wamwere
What's Near 9219 14th Avenue NW Seattle, WA 98117?

Information is based on data available to the associate, including county records. The information has not been verified by the associate and all information presented should be verified by the buyer. Listings are provided by Northwest Multiple Listing Service as distributed by MLS GRID. The associate represented on this web site is not a multiple listing service but is a member of a local MLS.
DMCA Notice