13434 Road A.5 NW Ephrata, WA 98823
13434 Road A.5 NW
Ephrata, WA 98823
$499,500
Residential
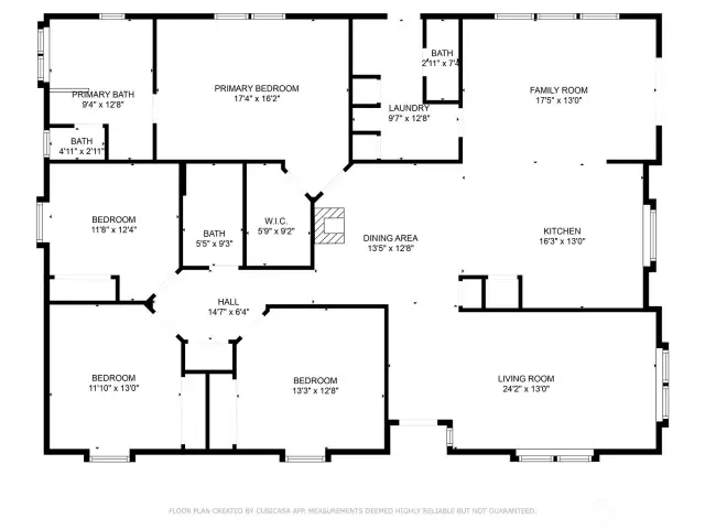
4 Beds
2.50 Baths
2240 SqFt
Pending Inspection
Country living at its best! This 5+ acre property features a 2020 Valley Quality Homes Triple Wide Mansion Series in great condition, offering 2,240 sq. ft., 4 bedrooms, and 2.5 baths. The open floor plan highlights vaulted ceilings, cozy wood burning stove, a spacious kitchen with oversized island, and a luxurious primary suite with walk-in closet, soaking tub, and walk-in shower. Energy-efficient with central heating, cooling, and extra insulation. Outside, enjoy a detached 24’x32’ garage with double electric panel, 2 large sheds, and a 9’x18’ above-ground pool. Plenty of space for RV parking, animals, or outdoor living. No CCRs—freedom, comfort, and room to grow!
Watch Virtual Tour #1Property Features
Community: Ephrata
Manuf-Triple Wide
View: Mountain(s)
View: Territorial
Deck
Outbuildings
RV Parking
Shop
Exterior: Wood Products
Roof: Composition
Parking: Driveway
Parking: Detached Garage
Parking: RV Parking
Year Built: 2020
2025 Taxes: $5802.76
Buyer Broker Comp.: 2.5%
Listing #: 2423521
Lot Details
Lot Size: 5.08 acres
Paved
Appliances That Stay
Dishwasher(s)
Microwave(s)
Refrigerator(s)
Stove(s)/Range(s)
Watch Virtual Tour #2Interior
Dining Room
Fireplace
Vaulted Ceiling(s)
Walk-In Closet(s)
Cooling: Central A/C
Heating: Heat Pump
Electric
Fireplaces: 1
Schools
District: Ephrata
Elem: Buyer To Verify
Middle: Buyer To Verify
High: Buyer To Verify
Call or Email:
Grace Wamwere
What's Near 13434 Road A.5 NW Ephrata, WA 98823?

Information is based on data available to the associate, including county records. The information has not been verified by the associate and all information presented should be verified by the buyer. Listings are provided by Northwest Multiple Listing Service as distributed by MLS GRID. The associate represented on this web site is not a multiple listing service but is a member of a local MLS.
DMCA Notice