
Classic brick facade welcomes you to 680 SE Prospect Street. Park in the generous driveway, or against lawn in culdesac.

Covered front porch is a perfect place to display favorite pots of colorful flowers.

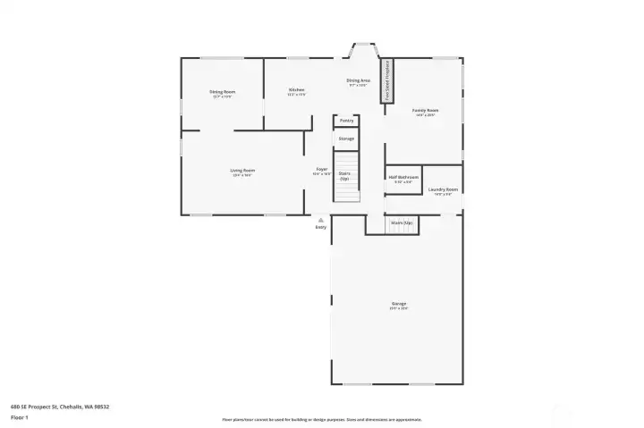
Before taking the photo tour here, take a look at the floor plan to orient yourself.

Entry. Stairs up to 2nd floor ... immediately to right is laundry and door to garage. Peek-a-boo here of guest bath. And, to left front is kitchen and door to back yard.

Living room is immediately to left as you enter the front door. New LVP flooring and fresh paint!

Formal dining room, also sporting new LVP flooring, is quite large ... perfect place to host holiday dinners!

Kitchen has fresnly painted cabinets and new countertops. Original hardwood oak floors here.

Window at sink overlooks back yard and out to lovely trees! Backyard also accessed from kitchen door. Really beautiful, peaceful view.

Breakfast nook sits right beside kitchen fireplace. Brick adds sooo much character!

Another look at the kitchen fireplace, breakfast nook and door to back yard.

Family room is just to the side of the kitchen and to the right of the entry. Here you can see the home's second fireplace. Beamed ceiling adds yet more character to this lovely home.

Home is so perfect for entertaining! Large well-planned rooms are framed with windows and views.. New LVP flooring here too!

Guest bath on the main floor near the entry, family room and laundry.

Laundry room ... Door just visible at right leads to outside fenced side yard.

Oriented over the garage, the bookroom/bonus room is accessible from a separate set of stairs near the entry.

Sellers lovingly call this the "book room." We're calling it the bonus room ... perfect for home office, gym, hobbies ... playroom ... you name it!

Located over the garage, the bookroom features skyights and very generous floor space.

Here's another look at the front door entry. Let's go up!

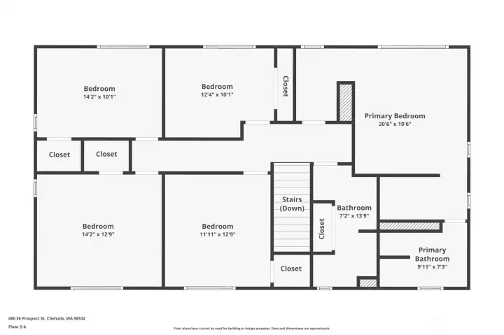
Here's the floor plan of the full 2nd floor -- 5 bedrooms, 2 baths.

Just to the top of the stairs, door at left leads to primary bedroom suite. Door at right is 2nd floor bath. New LVP flooring on hallways here.

2nd floor bath features long counter, tub/shower, huge linen closet, and toilet, of course.

Primary bedroom overlooks back yard. King-sized bed leaves loads of room for additional furnishings.

Primary Bedroom. Opening at right leads to ensuite.

One end of primary bath.

Opposite side of Primary bath.

Guest bed #1

Guest bed #1

Guest Bed #2

Guest Bed #2

Guest Bed #3

Guest Bed #3

Guest Bed #4

Guest Bed #4

Side yard. Nice and green in the spring!

Greenhouse with attached shed and lean-to

Brand new roof 2025

Overhead view -- forest behind the house.

Three included parcels - rough map to show relationship only. Buyer to verify lot lines.

Welcome home!