12310 Golden Given Road E Tacoma, WA 98445
12310 Golden Given Road E
Tacoma, WA 98445
$749,999
Residential
3 Beds
2.25 Baths
2110 SqFt
Pending - Backup Offer Requested
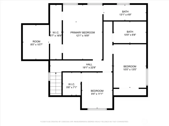
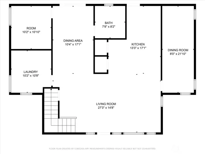
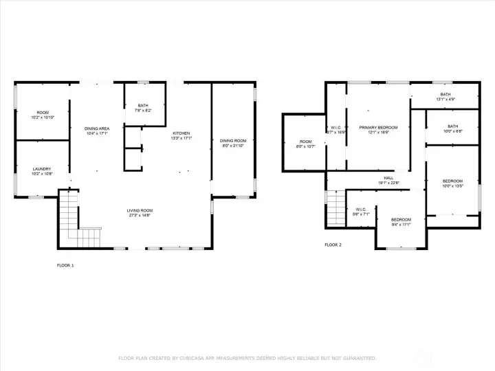
Incredible opp for builders or homeowners! This property sits on a 2.39-acre lot that can be subdivided to build 6+ homes (buyer to verify). Boasting 2,110 sq ft of living space across two separate buildings, the main residence with 1696 sq ft has been fully remodeled with new appliances, light fixtures, floorings, carpets, paints, roof, kitchen, bathrooms, and sidings. It features 3 beds upstairs, plus 3 versatile bonus rooms on the main floor—perfect for offices, guest rooms, or additional living space, plus front and back porches. The first floor features elegant tiles and carpet in rooms, while the 2nd floor is finished with new laminate floorings. Plenty of space to park your RV or expand—so many possibilities on this rare large lot!
Watch Virtual Tour #1Property Features
Community: Parkland
2 Story
Deck
Fenced-Partially
Outbuildings
Patio
Exterior: Cement Planked
Exterior: Wood
Exterior: Wood Products
Roof: Composition
Parking: Detached Carport
Year Built: 1936
2025 Taxes: $6418.00
Buyer Broker Comp.: 2.5%
Listing #: 2414579
Lot Details
Lot Size: 2.39 acres
Lot Dimensions: 164' x 630' x 165' x 630'
Appliances That Stay
Dishwasher(s)
Refrigerator(s)
Stove(s)/Range(s)
Interior
Bath Off Primary
Double Pane/Storm Window
Fireplace
Cooling: None
Heating: Wall Unit(s)
Electric
Fireplaces: 2
Schools
District: Franklin Pierce
Elem: Collins Elem
Middle: Morris Ford Mid
High: Franklin-Pierce High
Call or Email:
Grace Wamwere
What's Near 12310 Golden Given Road E Tacoma, WA 98445?

Information is based on data available to the associate, including county records. The information has not been verified by the associate and all information presented should be verified by the buyer. Listings are provided by Northwest Multiple Listing Service as distributed by MLS GRID. The associate represented on this web site is not a multiple listing service but is a member of a local MLS.
DMCA Notice