10019 Interlake Avenue N Seattle, WA 98133
10019 Interlake Avenue N
Seattle, WA 98133
$815,000
Residential
1 Beds
0.75 Baths
1320 SqFt
Active
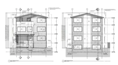
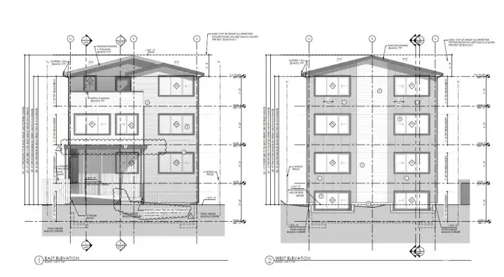
This is a prime and permit-ready development parcel in Northgate. The lot is 4,980SF and pre-approved for a 14-unit apartment building (6,474BSF) under LR1(M) zoning. Multiple unit configurations, bike parking, and sustainable designs conform to different tenant needs. Located near I-5, the Light Rail, Green Lake, and UW, it aligns very well with urban living. Demolition and Construction permits are ready for issuance; Master Use Permit is pending final approval. Existing home (720SF, 1bd/1ba, 600sf basement, det. garage) is operated as a short-term rental with strong occupancy. Complete this modern and vibrant addition to Northgate!
Property Features
Community: Licton Springs
1 Story w/Bsmnt.
Fenced-Partially
Bus Line Nearby: Yes
Exterior: Wood
Roof: Composition
Parking: Detached Garage
Year Built: 1926
2025 Taxes: $5648.00
Buyer Broker Comp.: 2.5%
Listing #: 2411912
Lot Details
Lot Size: 0.11 acres
Lot Dimensions: 40x124.5
Paved
Appliances That Stay
Dryer(s)
Stove(s)/Range(s)
Washer(s)
Interior
Double Pane/Storm Window
Dining Room
Cooling: None
Heating: Forced Air
Electric
Schools
District: Seattle
Elem: Viewlands
Middle: Robert Eagle Staff Middle School
High: Ingraham High
Call or Email:
Grace Wamwere
What's Near 10019 Interlake Avenue N Seattle, WA 98133?

Information is based on data available to the associate, including county records. The information has not been verified by the associate and all information presented should be verified by the buyer. Listings are provided by Northwest Multiple Listing Service as distributed by MLS GRID. The associate represented on this web site is not a multiple listing service but is a member of a local MLS.
DMCA Notice