11008 243rd Avenue NE Redmond, WA 98053
11008 243rd Avenue NE
Redmond, WA 98053
$1,745,000
Residential
4 Beds
2.75 Baths
2728 SqFt
Active
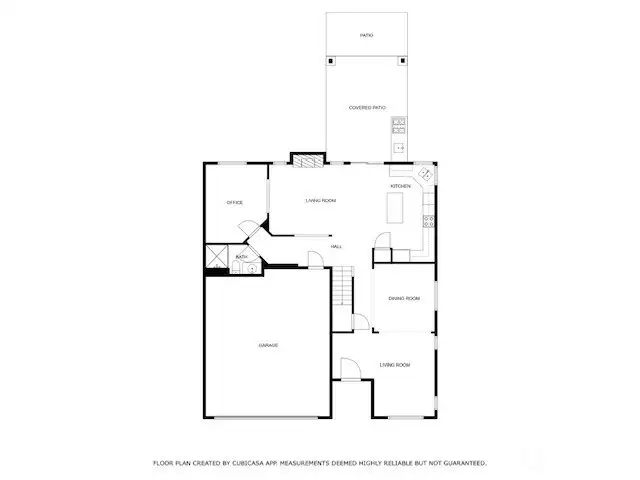
Smart Murray Franklyn home in Redmond Ridge East with luxury outdoor living! Fresh interior/exterior paint, new roof, and refinished hardwoods on the main floor. Open-concept kitchen flows into the family room, with formal living/dining area and a main-floor office/guest room next to a ¾ bath. Upstairs: large bonus room with closet, 4 spacious bedrooms, and a primary suite with 5-piece bath. Enjoy a fully fenced backyard with 300 sqft masonry patio, gable roof with skylights, two Bromic heaters, built-in Aspire 36" grill, and gas hookup. Extras: central A/C, 3-car garage & EV Charger. The community includes parks, athletic courts, playgrounds, and a dog park. Pre-inspected. Original owner.
Watch Virtual Tour #1Property Features
Community: Redmond Ridge
2 Story
Electric Car Charging
Fenced-Partially
Gas Available
High Speed Internet
Patio
Bus Line Nearby: Yes
Exterior: Cement Planked
Exterior: Stone
Exterior: Wood Products
Roof: Composition
Parking: Attached Garage
Year Built: 2010
HOA Dues: $290
2024 Taxes: $12963.00
Buyer Broker Comp.: 2.5%
Listing #: 2402685
Lot Details
Lot Size: 0.14 acres
Curbs
Paved
Sidewalk
Appliances That Stay
Dishwasher(s)
Disposal
Dryer(s)
Microwave(s)
Refrigerator(s)
Stove(s)/Range(s)
Washer(s)
Watch Virtual Tour #2Interior
Bath Off Primary
Dining Room
Fireplace
French Doors
Loft
SMART Wired
Walk-In Closet(s)
Cooling: Central A/C
Heating: Forced Air
Electric
Natural Gas
Fireplaces: 1
Community Features
Athletic Court
CCRs
Park
Playground
Schools
District: Lake Washington
Elem: Ella Baker Elem
Middle: Timberline Middle
High: Redmond High
Call or Email:
Grace Wamwere
What's Near 11008 243rd Avenue NE Redmond, WA 98053?

Information is based on data available to the associate, including county records. The information has not been verified by the associate and all information presented should be verified by the buyer. Listings are provided by Northwest Multiple Listing Service as distributed by MLS GRID. The associate represented on this web site is not a multiple listing service but is a member of a local MLS.
DMCA Notice