30 SE Bush Street Issaquah, WA 98027

Second home when you enter from Front to SE Bush st

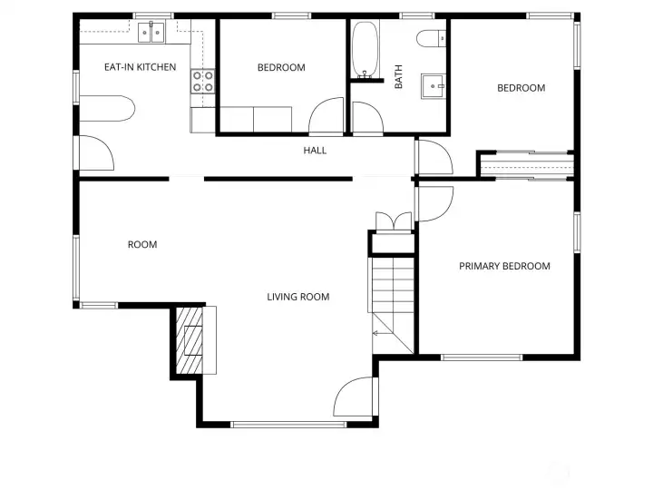
Front

Living area

Kitchen

Batromm on main level

Bedroom 1

Bedroom 2

Bedroom 3

Family/multipurpose room

Bathroom on lower level

Bedroom 4

Bedroom 5

Big backyard

Garage

4 parking stalls

Covered patio

View from alley with 4 parking spots next to fir tree & garage

Floor plan of the home

Main level

Lower level
30 SE Bush Street
Issaquah, WA 98027
$1,195,000
Residential
5 Beds
1.75 Baths
2440 SqFt
Pending - Backup Offer Requested
Fresh price adjustment ! Rare opportunity in Issaquah’s historic downtown Cultural Business District—live, work, or invest .Zoned CBD, it allows residential, multifamily, office, or mixed use (buyer to verify), offering outstanding flexibility now and in the future. 5 BR,2 BA, 2car garage,shop, RV parking on 9,000 sq ft lot. Extra 4 off-street parking spaces off the alley & 2 in front of the garage. ADA entrance landing and ramp at front. Lower level has fresh interior paint, new carpet, and a separate entrance. The home is ready for your vision and remodel, a fantastic opportunity to update and customize while capitalizing on prime location and zoning. Unbeatable walkable location: stroll to library, restaurants, theatre, parks. Highly rated Issaquah Schools!
Property Features
Community: Downtown Issaquah
1 Story w/Bsmnt.
View: Territorial
Deck
Fenced-Fully
Gas Available
High Speed Internet
Patio
RV Parking
Shop
Bus Line Nearby: Yes
Exterior: Wood
Roof: Composition
Parking: Detached Garage
Parking: RV Parking
Year Built: 1949
2025 Taxes: $9132.00
Buyer Broker Comp.: 2.5%
Listing #: 2401739
Lot Details
Lot Size: 0.21 acres
Paved
Sidewalk
Appliances That Stay
Dishwasher
Dryer
Refrigerator
Stove(s)/Range(s)
Washer
Interior
Dining Room
Fireplace
Cooling: None
Heating: Forced Air
Natural Gas
Fireplaces: 1
Schools
District: Issaquah
Elem: Clark Elem
Middle: Issaquah Mid
High: Issaquah High
Call or Email:
Grace Wamwere
What's Near 30 SE Bush Street Issaquah, WA 98027?

Information is based on data available to the associate, including county records. The information has not been verified by the associate and all information presented should be verified by the buyer. Listings are provided by Northwest Multiple Listing Service as distributed by MLS GRID. The associate represented on this web site is not a multiple listing service but is a member of a local MLS.
DMCA Notice