6 Nighthawk Circle Bellingham, WA 98229
6 Nighthawk Circle
Bellingham, WA 98229
$550,000
Residential
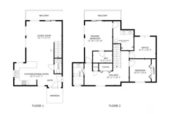
3 Beds
2.25 Baths
1670 SqFt
Active
Backed by green space and Lake Louise, this Sudden Valley home sits in a peaceful setting with direct access to one of the area’s most scenic walking trails. Hardwood floors, stainless steel appliances, and an open main-floor layout create a warm and functional living space. All bedrooms are located upstairs, including a spacious primary suite with a large bathroom and walk-in shower. Air conditioning ensures year-round comfort, while the sounds of birds and views of the lake add to the charm. With easy access to nature and resort-style amenities, you'll feel like you're on vacation every day. Community amenities include two swimming pools, a golf course, parks, playgrounds, pickleball courts, a marina, Lake Whatcom access, and more.
Watch Virtual Tour #1Property Features
Community: Sudden Valley
2 Story
View: Lake
Cable TV
Deck
High Speed Internet
Pool: Community
Bus Line Nearby: Yes
Leased: Propane Tanks
Exterior: Cement/Concrete
Exterior: Wood
Roof: Composition
Parking: Driveway
Parking: Attached Garage
Parking: Off Street
Year Built: 2006
HOA Dues: $156
2025 Taxes: $1167.00
Buyer Broker Comp.: 2.5%
Listing #: 2395320
Lot Details
Lot Size: 0.20 acres
Paved
Appliances That Stay
Dishwasher(s)
Disposal
Microwave(s)
Refrigerator(s)
Stove(s)/Range(s)
Watch Virtual Tour #2Interior
Bath Off Primary
Double Pane/Storm Window
Jetted Tub
Walk-In Closet(s)
Water Heater
Cooling: Central A/C
Heating: Forced Air
Propane
Community Features
Athletic Court
Boat Launch
CCRs
Club House
Community Waterfront/Pvt Beach
Golf
Park
Playground
Trail(s)
Schools
District: Bellingham
Elem: Geneva Elem
Middle: Kulshan Mid
High: Bellingham High
Call or Email:
Grace Wamwere
What's Near 6 Nighthawk Circle Bellingham, WA 98229?

Information is based on data available to the associate, including county records. The information has not been verified by the associate and all information presented should be verified by the buyer. Listings are provided by Northwest Multiple Listing Service as distributed by MLS GRID. The associate represented on this web site is not a multiple listing service but is a member of a local MLS.
DMCA Notice