24115 Madura Drive NE Kingston, WA 98346
24115 Madura Drive NE
Kingston, WA 98346
$230,000
Land
0 Beds
0.00 Baths
0 SqFt
Active
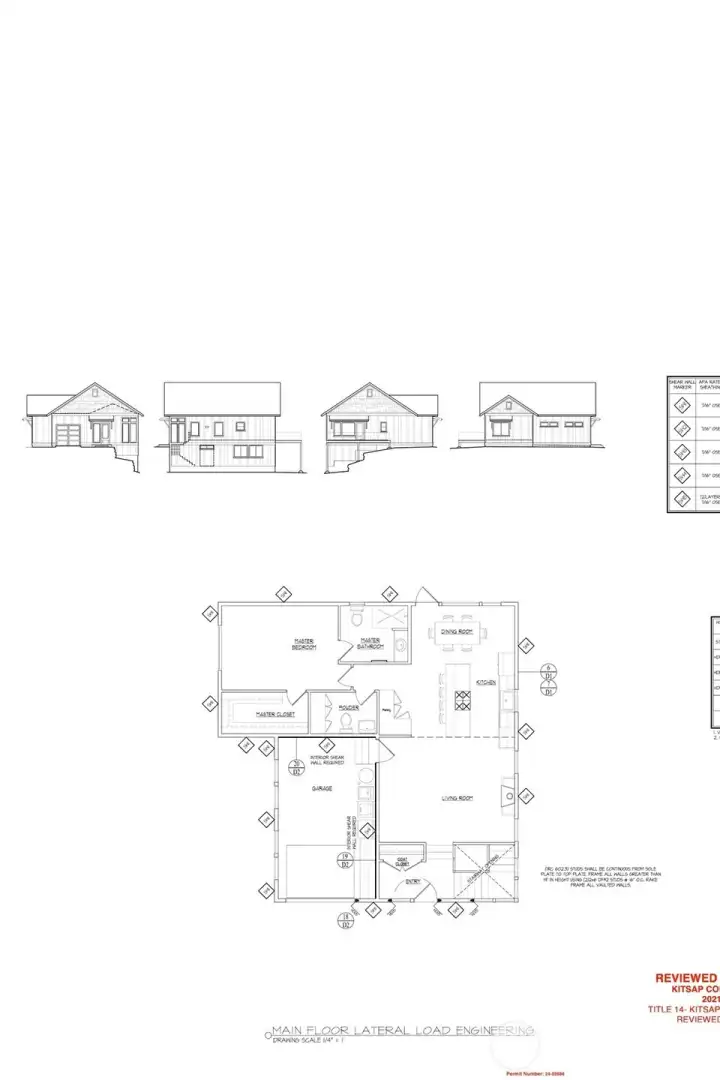
RARE opportunity to own TWO build-ready lots in sought-after Kingston! All the groundwork is done—county permits, approved septic, and building plans for TWO 3-bed, ~1,700 sq ft homes with decks are in place (1 on each lot). Use the provided plans or bring your own vision. Utilities are nearby, and all documents are ready for your builder. Enjoy access to a private community beach and close proximity to downtown Kingston, ferries, shopping, and dining. Whether you're building your dream home or investing in a growing area, this property offers exceptional potential. Buyer to verify all information. Don’t miss this ready-to-build package in a prime location!
Watch Virtual Tour #1Property Features
Community: Kingston
Res-Less thn 1 Ac
Brush
Lightly Treed
Pool: Above Ground
2025 Taxes: $1050.54
Buyer Broker Comp.: 2.5%
Listing #: 2382020
Lot Details
Lot Size: 0.65 acres
Paved
Topography: Level
Topography: Sloped
Road Sides: West
Road: Access Easement
Road: Paved
Watch Virtual Tour #2Utilities
Electricity: In Street
Water: Available
Gas: Not Available
Sewer: Not Available
Schools
District: North Kitsap #400
Elem: Richard Gordon Elem
Middle: Kingston Middle
High: Kingston High School
Call or Email:
Grace Wamwere
What's Near 24115 Madura Drive NE Kingston, WA 98346?

Information is based on data available to the associate, including county records. The information has not been verified by the associate and all information presented should be verified by the buyer. Listings are provided by Northwest Multiple Listing Service as distributed by MLS GRID. The associate represented on this web site is not a multiple listing service but is a member of a local MLS.
DMCA Notice