2532 7th Street SE East Wenatchee, WA 98802

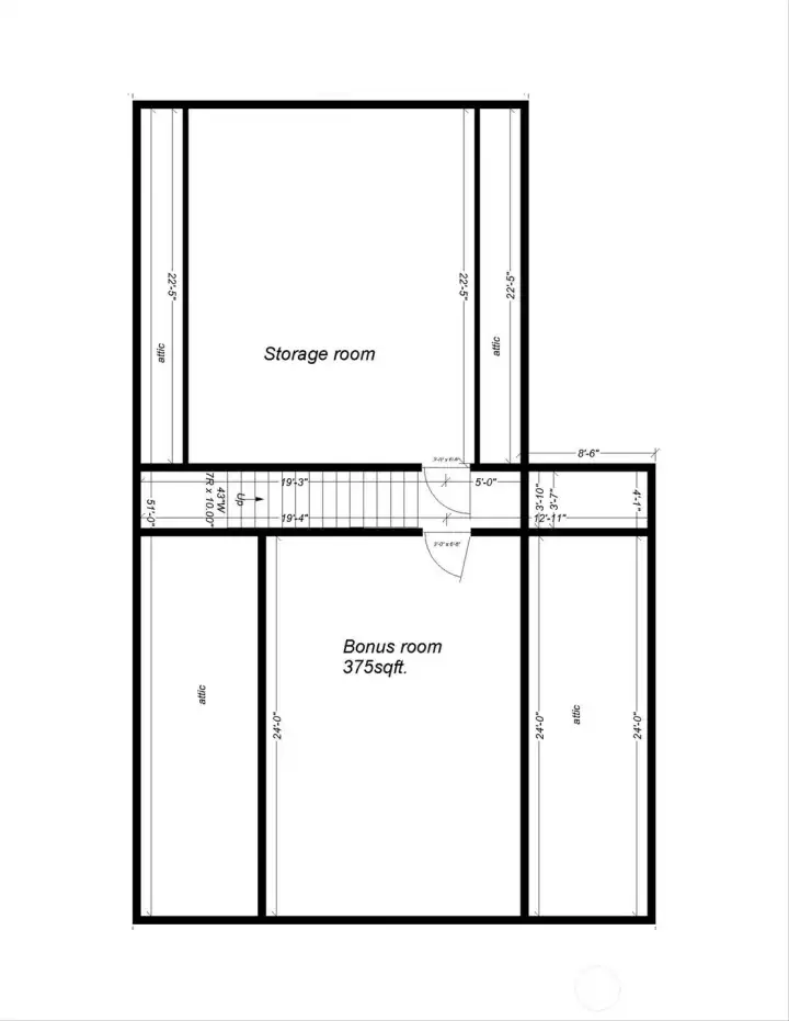
Floor Plan

Bonus Room & Storage Area

Example: What exterior face will look like. Colors will be different

Lot

surrounding area

view

Example: what interior could look like

Example:what interior could look like

Example: What storage area will look like

Example: what bonus room could look like

Example: what pantry will look like
2532 7th Street SE
East Wenatchee, WA 98802
$799,000
Residential
3 Beds
2.00 Baths
2499 SqFt
Active
PRESALE! This craftsman style house will be perfect for anyone. Single story with a bonus room above the garage, 3 beds, 2 baths, with a double sink in the primary bath and an attached walk-in closet in the primary. Interior hard surfaces will be quartz countertops throughout the house, LVP in main living areas, carpet in the bedrooms & tile in bath/ laundry. A storage room adjacent from the bonus room for all your extras! The front yard will be landscaped with sprinkler system and sod. Location is ideal, only 5 minutes away from all shopping, grocery, school, and church needs. Jessup Home Design builds & designs quality homes to be functional and enhance daily life! If buyer's get in soon enough they can customize certain features!
Property Features
Community: East Wenatchee
1 1/2 Story
View:
Irrigation
Patio
RV Parking
Sprinkler System
New Construction: Yes
Exterior: Wood Products
Roof: Composition
Parking: Attached Garage
Parking: RV Parking
Year Built: 2025
HOA Dues: $125
2025 Taxes: $1330.00
Buyer Broker Comp.: 3/1.5%
Listing #: 2363780
Lot Details
Lot Size: 0.30 acres
Curbs
Paved
Sidewalk
Value In Land
Appliances That Stay
Dishwasher
Disposal
Microwave
Stove(s)/Range(s)
Interior
Bath Off Primary
Fireplace
Pantry
Sprinkler System
Walk-In Closet(s)
Cooling: Heat Pump
Heating: Heat Pump
Electric
Fireplaces: 1
Schools
District: Eastmont
Elem: Buyer To Verify
Middle: Buyer To Verify
High: Buyer To Verify
Call or Email:
Grace Wamwere
What's Near 2532 7th Street SE East Wenatchee, WA 98802?

Information is based on data available to the associate, including county records. The information has not been verified by the associate and all information presented should be verified by the buyer. Listings are provided by Northwest Multiple Listing Service as distributed by MLS GRID. The associate represented on this web site is not a multiple listing service but is a member of a local MLS.
DMCA Notice