7811 S Verde Street Tacoma, WA 98409
7811 S Verde Street
Tacoma, WA 98409
$4,400,000
Residential
4 Beds
2.00 Baths
3943 SqFt
Pending Feasibility
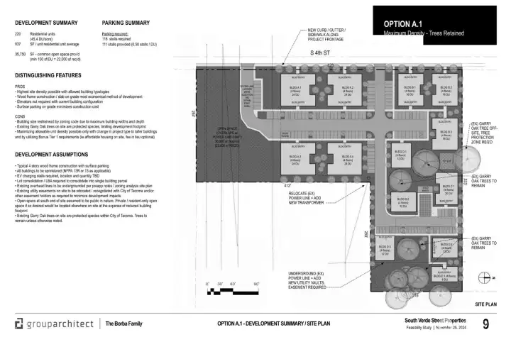
Investors/builders take note of this rare unique offering! 3 contiguous tax parcels totaling 5.07 acres, recently rezoned Urban Residential-3 (UR-3) per the "Home in Tacoma Plan" Feb 2025. Parcels like this don’t come to the market very often. Unusual high density zoning is now available for this large parcel, and 628 feet of frontage on S. Verde offers a rare development opportunity for the buyer who catches the vision of what’s possible here. Quiet residential neighborhood, convenient to elementary and high school w straight shot access to I-5, Lakewood/Tacoma Services +Joint Base Lewis McChord. Addresses of individual parcels are 7811, 7815, 7801 S. Verde. Pre-Feasibility Study/ Site Plan from architect is complete-available on request
Watch Virtual Tour #1Property Features
Community: South Tacoma
2 Story
Exterior: Wood
Exterior: Wood Products
Roof: Composition
Parking: Driveway
Parking: Attached Garage
Parking: Off Street
Year Built: 1952
2024 Taxes: $15535.00
Buyer Broker Comp.: 2%
Listing #: 2335123
Lot Details
Lot Size: 5.07 acres
Open Space
Paved
Value In Land
Interior
Cooling: None
Heating: Forced Air
Electric
Schools
District: Tacoma
Elem: Manitou Park
Middle: Gray
High: Mt Tahoma
Call or Email:
Grace Wamwere
What's Near 7811 S Verde Street Tacoma, WA 98409?

Information is based on data available to the associate, including county records. The information has not been verified by the associate and all information presented should be verified by the buyer. Listings are provided by Northwest Multiple Listing Service as distributed by MLS GRID. The associate represented on this web site is not a multiple listing service but is a member of a local MLS.
DMCA Notice